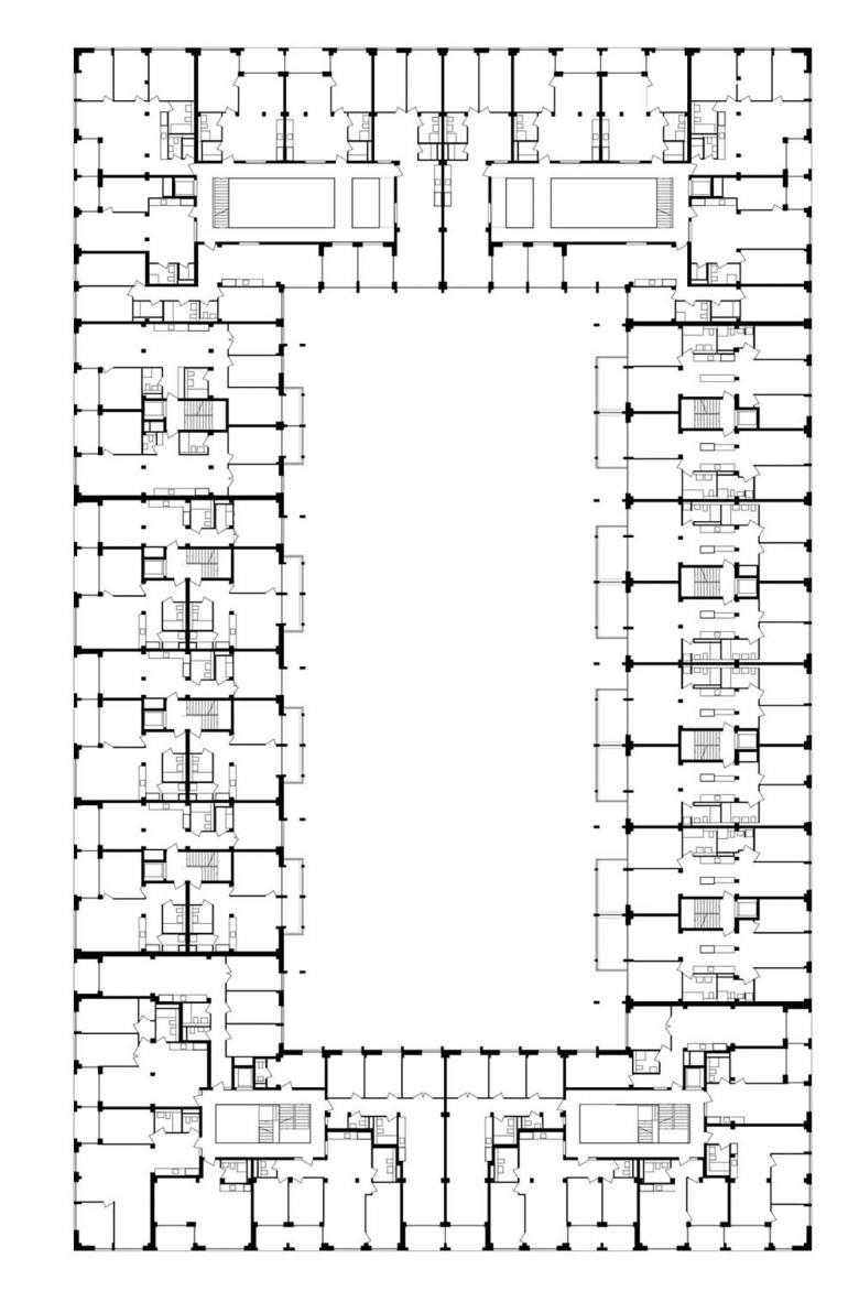
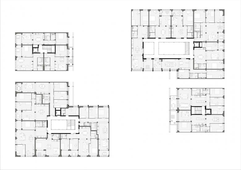
Wohnhaus Krokodil
Neubau mit Gewerbeflächen und 251 Wohnungen
2016 Studienauftrag auf Einladung 1. Rang
In Arbeitsgemeinschaft mit Baumberger & Stegmeier Architekten Zürich
- 年
- 2021
- プロジェクトステータス
- 竣工済
- クライエント
- Genossenschaft Gesewo Winterthur, Genossenschaft Gaiwo Winterthur, Anlagestiftung Adimora Zürich, Implenia Schweiz AG Winterthur
- チーム
- Peter Baumberger, Karin Stegmeier, Stephan Popp, Monika Kilga, Daniel Kaschub, Markus Nyfeler, Remo Reichmuth, Nadine Jaberg, Giancarlo Ceriani, Arno Bruderer, Sarah Fahrni, Lars Schriever, Viola Müller, Roman Schober, Urs Bösch, Andreina Schnellmann, Josua Frei
- Holzbauingenieur
- Timbatec Schweiz AG, Zürich
- Bauingenieur
- Dr. J. Grob & Partner AG, Winterthur
- Bauphysik
- Pirmin Jung Schweiz AG, Rain
- Fassadenplaner
- EBP Schweiz AG, Zürich
- Haustechnik
- Implenia Schweiz AG, Opfikon
- Elektroingenieur
- Hefti. Hess. Martignoni. AG, Zürich
- Landschaftsarchitektur
- Hager Partner AG, Zürich
- BIM-Support
- Kaulquappe AG Schweiz, Zürich















