An- und Umbau eines Wohnhauses in Mainz
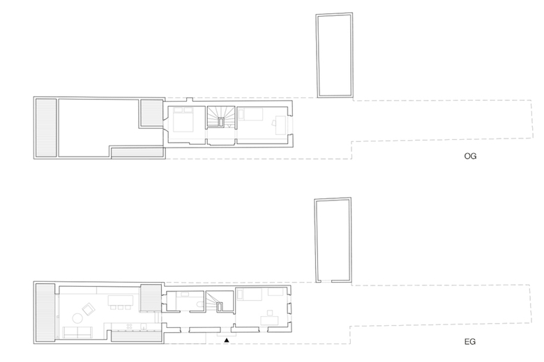
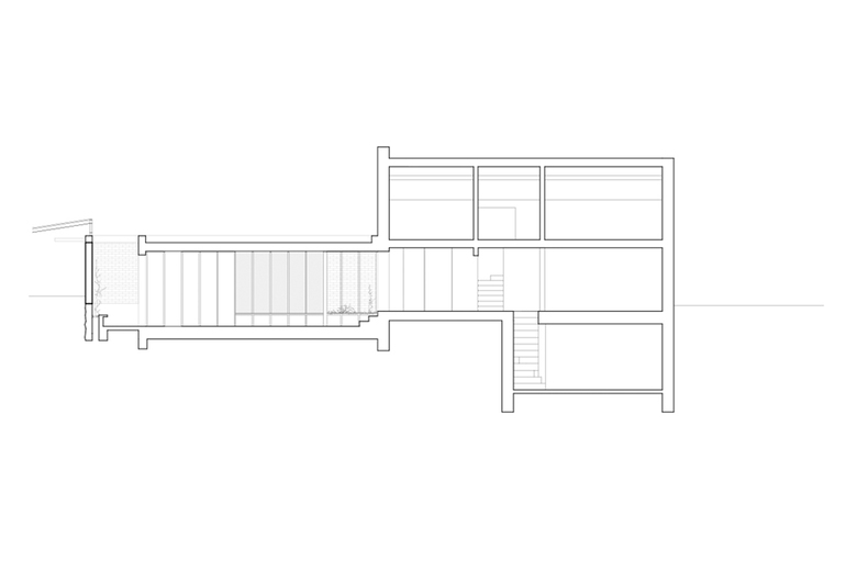
Das Arbeiterhäuschen von 1890 steht auf einem nur 5 Meter breiten und 25 Meter langen Grundstück mitten im dicht bebauten Dorfkern von Mainz Gonsenheim. Es wurde für eine junge vierköpfige Familie mit seinen 3.5 Zimmern auf nur ca. 40qm Wohnfläche zu klein, und so musste entweder eine Lösung für eine Erweiterung des Hauses gefunden werden, oder die Familie hätte hier nicht wohnen bleiben können. Da der Rest des Grundstücks nach den Baugesetzen als unbebaubar galt, konnte der projektierte, eingeschossige und den Garten vollständig besetzende Anbau nur mit Einwilligung der betroffenen Nachbarn realisiert werden.
Zusammen mit einer internen Neuorganisation des bestehenden Gebäudes konnte die nutzbare Wohnfläche nahezu verdoppelt und trotz der eingeschränkten Flächen ein Gefühl von Grosszügigkeit hergestellt werden. Der Anbau ist dabei nur durch einen schmalen Raum mit dem Bestandsgebäude verbunden und lässt somit den Blick auf die archetypische Bestandsfassade frei. Im Anbau befindet sich das neue Wohnzimmer mit einem offenen Koch- und Essbereich. Aufgrund der Grenzbebauung und den damit verbundenen Brandschutzvorschriften waren Öffnungen in den Aussenwänden nicht zulässig. Belüftet wird der Wohnraum über drei begrünte Höfe, die Licht ins Innere leiten und den Raum optisch vergrössern. Entstanden ist ein introvertierter Raum, der von der Materialität der umlaufenden, steinernen Wände geprägt ist sowie von der hölzernen, feingliedrigen Struktur im Innenraum.
- 建築家
- alma maki gmbh
- 年
- 2018
- プロジェクトステータス
- 竣工済
関連したプロジェクト
Magazine
-
-
今週のビル
The Three-Body Problem: Trapped in a Wave Sandwich
Eduard Kögel, Scenic Architecture Office | 13.04.2026 -











