Bauhaus Museum Dessau
06844 Dessau-Roßlau (GE), Dessau-Roßlau, ドイツ
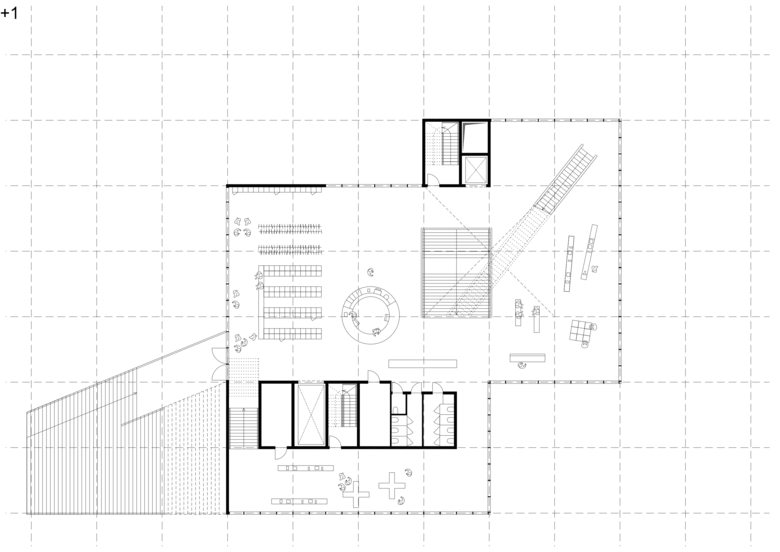
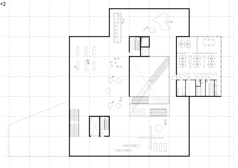
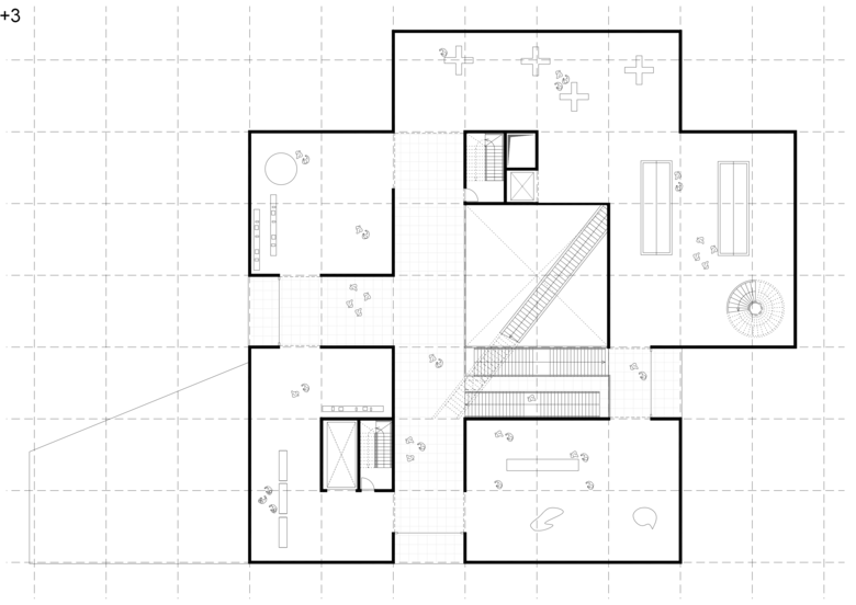
The decision to build a new Bauhaus Museum in Dessau’s central city park seems bold and adventurous. The occupation of an urban park tissue with a new museum is a highly sensitive matter. The idea of a museum challenges the relationship between the ‘locals’, i.e. the people who know and enjoy the city park as being part of their daily life and recent history, and the ‘globals’ who tend to read the park merely as the setting of a new museum genre ‘yesterday Weimar, today Dessau, tomorrow Berlin’. Our proposal aims to reveal the urban potential of the city park rather than settle with the terms of the context. The ground floor leaves a minimal footprint thus giving more space to the park, while all four facades of the museum engage with the public programmatically and visually. Above the ground floor sits a vertical cluster of ‘topoi’ and museum functions that are mixed with voids and gaps. By introducing vertical components interiorly and exteriorly, the museum appeals to the individual visitor and the city of Dessau.
Gropius’ Bauhaus School of Design introduced deliberate dynamic spatial sequences by planning the relation between build and void. Our Bauhaus Museum design proposal reinterprets and intensifies this dynamic between solids and voids and obliterating the distinction between plan and section. Plan and section are dealt with in an uniformed manner. There is no hierarchy. Both plan and section have the same expression of one spatial reality deployed in all directions
- 年
- 2015
- プロジェクトステータス
- デザイン案












