北京人文艺术中心

China

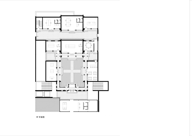
北京人文艺术中心位于老北京城北部,临近雍和宫。这里是一片完整的北京传统四合院建筑区。北京人文艺术中心占地面积不大,主体由一套标准的三进院构成。现有建筑地面以上部分,是近年在原址上按照旧建筑重建而成的,地下部分则是新建的。北京人文艺术中心则是在现有建筑的基础上,进行改造以适应新的功能。该项目最大的挑战是如何在保护现有四合院建筑形态的基础上,将一个十分封闭,内向的传统居住建筑转变为一个开放的积极面对外部世界的公共空间。新方案在保留原有四合院空间格局的基础上,重新设计流线与功能组织。提高空间的使用效率,将地上与地下空间既紧密又区别的组织在一起。地上部分,将原有封闭的倒座与入口重新设计,在保持原有街道尺度的基础上,转变为一个充满自信的透明开放空间,将街道的风景与内庭园的空间联系在一起,不论是白天与黑夜,这里都将成为一个积极开放的城市空间,为街道生活注入活力。入口处向外出挑的房檐,为胡同街道提供了一个遮风避雨的友好空间,既服务于外来的参观人群,也在不同时段服务于本地居民。这个谦逊的高品质空间,不仅有助于创造与传播高尚文化,也有助于促成良好的邻里生活。

建築家
超城建筑
プロジェクトステータス
デザイン案

関連したプロジェクト 

  • Moos
    playze
  • Reiters Reserve Premium Suiten
    BEHF Architects
  • Erweiterung und Instandsetzung Hallenbad Altstetten
    MIYO Visualisierung
  • Neubau von fünf Einfamilienhäusern
    Bäumlin+John AG
  • The Forge in der 105 Sumner Street in London
    Kiefer Klimatechnik GmbH

Magazine 

超城建筑 によるその他のプロジェクト 

Tenth Garden: Huayan Road No.7
Tianqiao, China
北京航星园旧厂房改造
Beijing, China
西北高海拔地区的马巷新民宿:群院
唐旺镇,东乡族自治县, China
内胡同——储子营胡同36号院更新改造
北京, China
间舍美术馆
China