«bella vista» Terrassenhäuser
Oberdorf, Birrwil, スイス
Geschützt, am Osthang des Hombergs liegt Birrwil am Hallwilersee im aargauischen Seetal. Das Dorfbild wird mehrheitlich von Bauernhäusern mit hohen Walmdächern geprägt. Der suburbane Kontext wird aber zusehend mit neuzeitlichen Bauten durchsetzt.
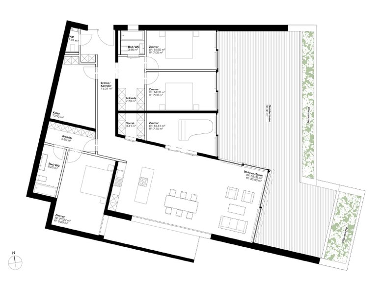
Das Rhomboid- förmige Grundstück an der Oberdorfstrasse liegt an der sensiblen Schnittstelle der Bauzone zum Kulturland. Die Terrassenbebauung „bella vista“ verfolgt das Konzept der Flächenbebauung, welche sich maximal zwei Geschosse aus dem Terrain erhebt. Die gesamte Anlage ist wie ein „grüner Teppich“ ausformuliert, der durch eine zurückhaltende Farbigkeit und gross dimensionierte Pflanzentröge mit ortstypischer Bepflanzung zurückhaltend in Erscheinung tritt und Ruhe ausstahlt. Die unter der Maxime der „Tarnung“ entwickelte Architektur reagiert so auf die empfindliche Zonengrenze.
- 年
- 2014
- プロジェクトステータス
- デザイン案
関連したプロジェクト
Magazine
-
-
今週のビル
The Three-Body Problem: Trapped in a Wave Sandwich
Eduard Kögel, Scenic Architecture Office | 13.04.2026 -












