Biozentrum Univeristät zu Köln, 2. BA
Köln, ドイツ
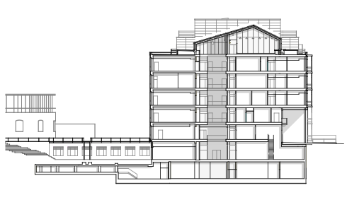
Im biowissenschaftlichen Zentrum sind die Institute für Botanik, Zoologie und Entwicklungsbiologie angesiedelt. Der kompakte Baukörper fügt sich in die vorhandene orthogonale städtebauliche Struktur.
Der 6-geschossige Neubau ist in den Regelgeschossen als 5-Bund ausgebildet. Flexibel nutzbare Labor- und Büroeinheiten sind nach Arbeitsgruppen unterteilt, begrünte Zonen fungieren als kommunikative Bewegungsflächen. Im Eingangsgeschoß befinden sich die öffentlichen Nutzungen wie Hörsäle, Praktikumsräume und Bibliothek. Vertikale Lufträume verbinden öffentlichen Bereiche mit den Institutsebenen. Das Dachgewächshaus verzahnt sich in der Vertikalen mit der inneren Erschließungsfuge.
Zu den betreuten Umstrukturierungsmaßnahmen auf dem ehemaligen Augusta-Krankenhaus-Gelände gehören außerdem der Umbau und die Sanierung des großen Hörsaals (Fachbereich Geologie), der Neubau eines Freilandgewächshauses mit Freilandversuchsflächen, Umbau und Erweiterung des sogenannten Südbaus (Fachbereich Geographie), sowie der Neubau des zentralen Gefahrstofflagers.
- 年
- 2012
- プロジェクトステータス
- 竣工済















