Casa Di Paola Extension

Cadro, スイス
写真 © studio we

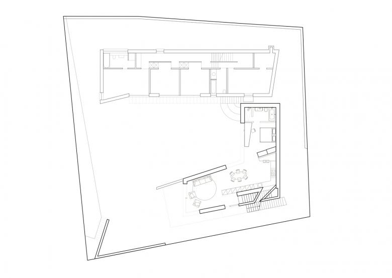
Il progetto "Extension" si inserisce come un corpo annesso ad una villa esistente, completamente indipendente da essa.

写真 © studio we
写真 © studio we
写真 © studio we
写真 © studio we
写真 © studio we
写真 © studio we
写真 © studio we
写真 © studio we
写真 © studio we
建築家
studio we architettura
2019
プロジェクトステータス
竣工済

関連したプロジェクト 

  • Gymnasium Schulstraße
    Kronaus Mitterer Architekten
  • GROHE Water Experience Center
    D’art Design Gruppe GmbH
  • Limmatquai 4
    Kästli Storen
  • Volksschule Erlaaer Schleife
    Kronaus Mitterer Architekten
  • Ortsdurchfahrt Domat/Ems
    Luminum GmbH

Magazine 

studio we architettura によるその他のプロジェクト 

Villa storica
Cureglia, スイス
Casa degli scout
Horgen, スイス
Casa Bellavista
Menorca, Spain
Campus USI
Lugano, スイス
Scuola d'infanzia
Stabio, スイス