Convention Center Auditorium "El Sablón de Llanes"

Avenida de las Gaviotas, Llanes, Spain

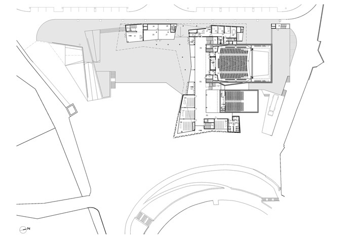
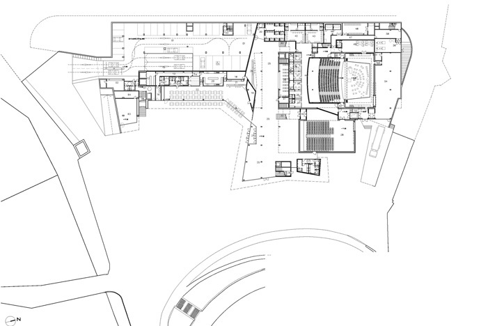
The Auditorium of the Sablon Llanes is a Convention Center with exhibition spaces and a Music School, but it is also a Cultural Center that combines the artistic and the business activity. The space consits of one theater and a free shaping hall. The layout of this cultural complex, that has terraces and other public spaces, it makes it an ideal choice for the confluence and encounter of people.

建築家
DFT arquitectes
プロジェクトステータス
建設中

関連したプロジェクト 

  • Gymnasium Schulstraße
    Kronaus Mitterer Architekten
  • GROHE Water Experience Center
    D’art Design Gruppe GmbH
  • Limmatquai 4
    Kästli Storen
  • Volksschule Erlaaer Schleife
    Kronaus Mitterer Architekten
  • Ortsdurchfahrt Domat/Ems
    Luminum GmbH

Magazine 

DFT arquitectes によるその他のプロジェクト 

Horta Bus Depot
Barcelona, Spain
"La Cooperativa" Theater
Barberà del Vallès, Spain
Faculty of Educational Sciences
Cerdanyola del Vallès, Spain
Pentitentiary "Puig de les Basses"
Figueres, Spain
"La Massa" Theater
Vilassar de Dalt, Spain