Haus D
bei Wien, オーストリア
Im Garten der Nachbarn
Nachverdichtung kann auch im verbauten Einfamilienhaus Siedlungsgebiet möglich sein. Das Grundstück von Haus D liegt inmitten eines Baublocks umrandet von Siedlungsstraßen, an denen die einzelnen Häuser einen großen wunderbaren Garten im Herzen des Blockes formen. Die großzügige Widmung erlaubt es alle Grundstücke bis zu einem Viertel der gesamten Grundstücksflächen zu bebauen, und schafft dadurch Möglichkeiten Grundstücke zu teilen und die Grünfächen nachzuverdichten. So entstand ein 433m² großer Bauplatz inmitten bestehender Grünanlagen, der von der Straße aus nicht einsehbar ist. Durch die Grundwassersituation im Einflussbereich der Donau und der leichten Absenkung des Grundstückes zum Straßenniveau, war schnell klar möglichst hoch bauen zu wollen.
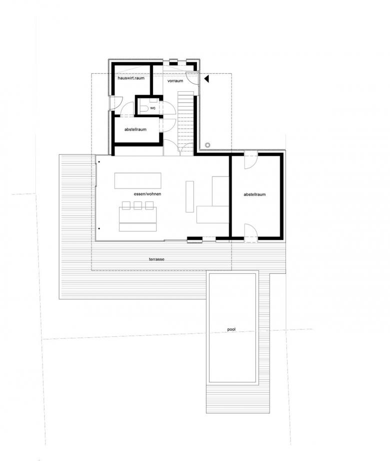
Das Familienleben spielt sich zwischen Wohnen und Kochen im Erdgeschoß und Schlafen und Relaxen im Obergeschoß ab. Ein zusätzlicher multifunktionaler Raum im Dachgeschoß erstreckt sich mit rundum Blick hoch über die Nachbarn. Die verschiedenen Nutzungsbereiche der noch 3-köpfigen Familie spiegeln sich in drei unterschiedlich ausgeformten, gestapelten Volumina wider, die zueinander verschoben wurden.
Das transparente Volumen der Wohnräume im Erdgeschoß ist großteils vollflächig und raumhoch verglast um möglichst viel Bezug zum Außenraum herzustellen. Angedockt an die transparenten Flächen sind die erforderlichen Nebenräume nur teilweise über Schlitze belichtet.
Die eher introvertiert erscheinende Box mit Schlafräumen im Obergeschoß scheint über der Wohnebene mit vorgelagerten Balkonen zu schweben. Der multifunktionale Raum im Dachgeschoß, als zurückversetzte ebenfalls geschlossen wirkende Box, wird vom Garten kaum wahrgenommen und schafft so Intimität und einen Rückzugsbereich.
Die Konstruktion besteht im EG aus Beton bzw. einer Sichtbetondecke und einem Holzleichtbau in den Obergeschoßen. Die vertikale Lattung der Fassade besteht aus grau vorimprägniertem Tannenholz - einerseits um die Verwitterung des Gebäudes vorweg zunehmen und homogener zu gestalten und andererseits um die drei Volumen als ein ganzes erscheinen zu lassen. Die Lattung zieht sich teilweise auch als natürlicher Sonnen- und Sichtschutz über die Fixverglasung.
- 年
- 2016
- プロジェクトステータス
- 竣工済
- in Zusammenarbeit mit
- Arch. Günther Litzlbauer
















