Dea Dia - Kindergarten Städtli, Huttwil
Offener Wettbewerb 2017 - 3. Preis
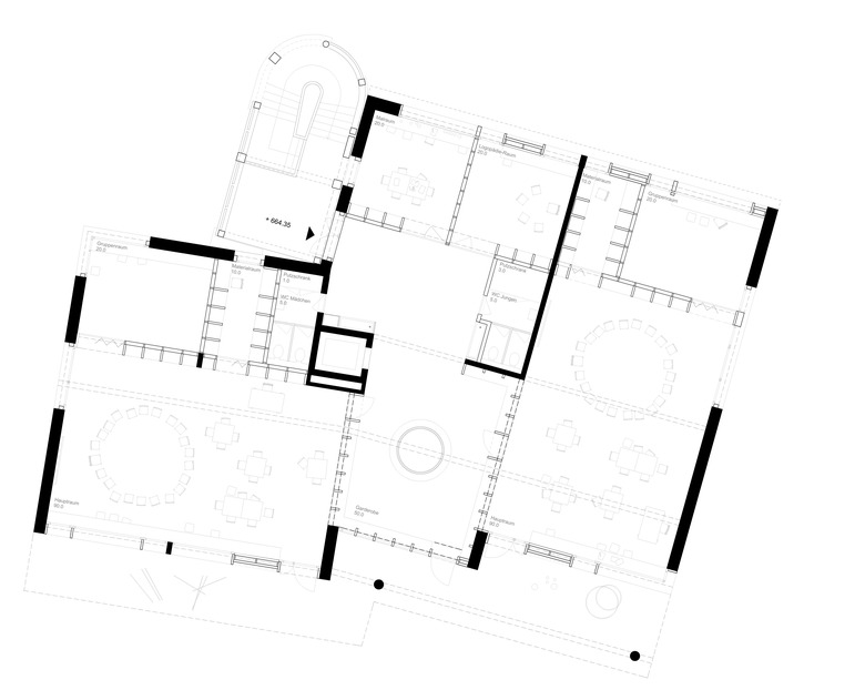
Die Schulanlage Städtli wird von zwei freistehenden Körpern dominiert. Dem Schulhaus und der ehemaligen Turnhalle. Sie spannen den Pausenplatz auf. Der neue Doppelkindergarten führt das bestehende Raumprinzip fort. Er setzt sich neben der Turnhalle an die Hangkante. Als neues Gegenüber gibt er dem bestehenden, leicht erhöhten Garten einen Abschluss.
Die Haupterschliessung der Schulanlage erfolgt über den vorgelagerten, sanft ansteigenden Pausenplatz. Über die Gelenksituation des Platzes öffnet sich die Aussicht in die hüglige Landschaft. Der Haupteingang des Neubaus ist stirnseitig angeordnet, gut ersichtlich vom Pausenplatz her. Hier tritt das Gebäude auf das Niveau des Schulhofes herunter. Die räumliche Erweiterung des bestehenden Platzes generiert einen eigenen Ankunftsort für die Kindergartenkinder. Ein turmartiges Gebilde im Dreh- und Angelpunkt des Neubaus fungiert als verbindendes Element zwischen Schul- und Gartenebene und bildet gleichzeitig den Hauptaufgang zum Kindergarten. Der offene Erschliessungsturm gibt der Schulanlage einen zusätzlichen Aussenraum - einen neuen Begegnungsort.
- 建築家
- Studio Barrus
- プロジェクトステータス
- デザイン案
- クライエント
- Gemeinde Huttwil
- Landschaftsarchitekt
- Sébastien Studer







