Doppelhaus in Strinz-Margarethä
Hohenstein, ドイツ
Video ©
/ Doppelhaus am steilen Hang
/ 2 x ca. 165 m²
/ Holzständerbauweise an Steilhang
/ fertiggestellt
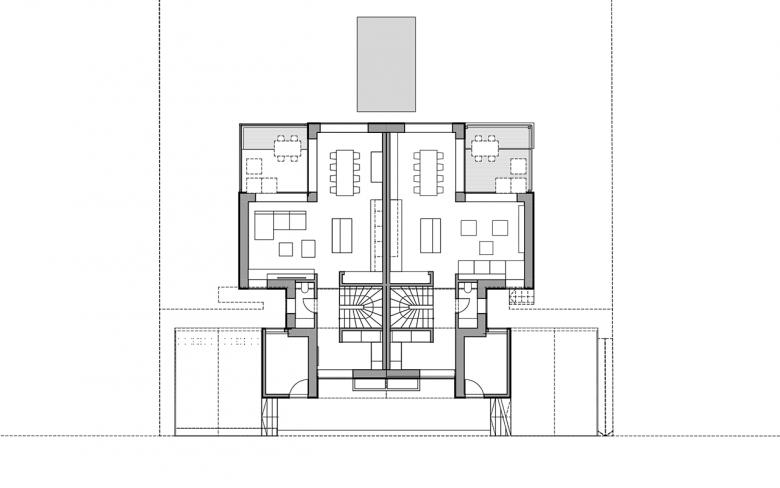
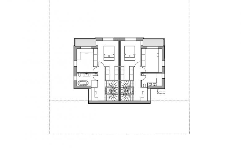
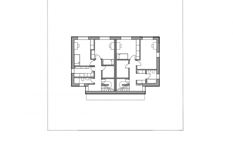
Von der Straße aus kaum sichtbar, entfaltet sich das Haus über drei Ebenen am 45° steilen Hang. Das Wohngeschoss auf der Straßenebene bietet, fast schon erhaben, einen Blick über den Ort und die sanften Hügel des Taunus. Die Terrasse fungiert als Aussichtsplattform, und auch die übrigen Zimmer genießen diesen außergewöhnlichen Ausblick.
Die Fassade des Hauses ist hell und vorvergraut, was einen markanten Kontrast zu unserem schwarzen Nachbarhaus bildet.
Holzständerbauweise mit Wärmepumpe, dezentraler Lüftungsanlage mit WRG und PV-auf dem Dach.
- 年
- 2024
- プロジェクトステータス
- 竣工済





















