Duchess Residences

110 Duchess Avenue, Singapore, Singapore
写真 © John Gollings

Located at 110 Duchess Avenue in Singapore, Duchess Residences is a site responsive, sculpted landscape of organic landforms, cascading water features, tree fringed verandas and paths that intertwine like flowing ribbons.

Imagine an undulating terrain of gentle slopes leading up to luminescent swimming pools and reflective ponds, creating a layered, three-dimensional scenery. The contoured undulations connect three different levels – the basement, multi-function room and the sky terrace – and meld into lush nature, exuding a sense of mystery and discovery.

On breezy, sunny days, skylights on green terraces illuminate the shimmering pool, casting a soft, wavering shaft of light into the lagoon-like waters beneath. Covered by lush greens, this residential space is a haven of tranquility.

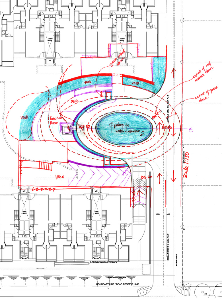
Overall site plan
© STX Landscape Architects
Initial Architectural drawings without landscape architect’s input
図面 © STX Landscape Architects
Preliminary landscape outline. Contouring and stepping in an attempt to work with challenging undulating terrain
図面 © STX Landscape Architects
Initial landscape concept presentation with long curvilinear ramps generated to preserve Universal Design Principles
図面 © STX Landscape Architects
Sectional studies to explore spatial quality and integrity of landscape layering, elements and levels
図面 © STX Landscape Architects
Study of landscape levels at main entrance drop-off area
図面 © STX Landscape Architects
In-house scaled model to study proposed landscape elements in a 3D
ビジュアリゼーション © STX Landscape Architects
Aerial overview of the landscape design with its “peeling of layers” corresponding to original undulating site terrain.
写真 © John Gollings
Central landscape area portraying an intimate Secret Garden with nature pervasive in the organic forms through out the site where planting and water inter-play.
写真 © John Gollings
At dusk, the bubbling Jacuzzi animates the lower level of the pool while the handicap ramp glides softly over the upper mirrored surface.
写真 © John Gollings
Along the Kid’s Pool, a series of “Organ Pipes” act as a safety barrier to the void adjacent, while being at the same time a water play feature by day.
写真 © John Gollings
Jacuzzi pool at night.
写真 © John Gollings
Water cascades from the main pool into the Jacuzzi Pool, and finally over onto the curving step cascades fronting the lawn.
写真 © John Gollings
The void visually connects the upper deck and lower pool. Reflections soften the soffit with a dynamic pattern that changes throughout the day.
写真 © John Gollings
The canopy of the palms emerges from the void and engages with the spiral ramp above.
写真 © John Gollings
Overview from the spiral ramp into the landscape courtyard below. Kid’s pool and Organ Pipe water feature on the right.
写真 © John Gollings
Aerial overview of the organic layering of landscape by night.
写真 © John Gollings
ランドスケープ アーキテクト
STX Landscape Architects
2011
プロジェクトステータス
竣工済

関連したプロジェクト 

  • Moos
    playze
  • Reiters Reserve Premium Suiten
    BEHF Architects
  • Erweiterung und Instandsetzung Hallenbad Altstetten
    MIYO Visualisierung
  • Neubau von fünf Einfamilienhäusern
    Bäumlin+John AG
  • The Forge in der 105 Sumner Street in London
    Kiefer Klimatechnik GmbH

Magazine 

STX Landscape Architects によるその他のプロジェクト 

Oasia Hotel Downtown
Singapore, Singapore
Foresque Residences
Singapore, Singapore
NUS University Town (NUS UTown)
Singapore, Singapore
Urban Suites
Singapore, Singapore
Nanyang Technological University (NTU) North Hill
Singapore, Singapore