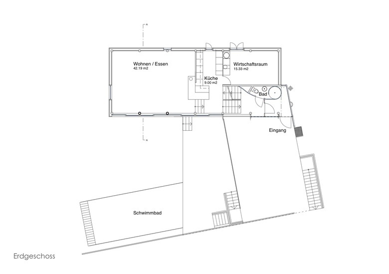
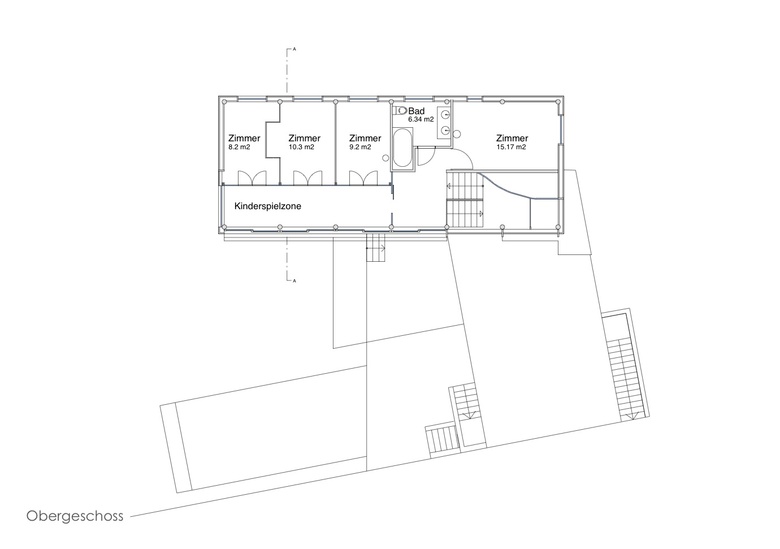
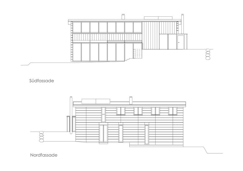
EFH
Einfamilienhaus mit transparenter Wärmedämmung an der Südfassade. Das 1.OG wurde so gestaltet, dass verschiedene Raumteilungen möglich sind. Hinter der partiell transparenten Fassade liegt ein Vorbereich der Zimmer, der als Spielzone oder Bürobereich genutzt werden kann.
- 年
- 2001
- プロジェクトステータス
- 竣工済









