Enrico Fermi School
Turin, イタリア
Name of work in English
Enrico Fermi School
Name of work in original language
Scuola Enrico Fermi
Placement
Emerging Architecture Finalist
Prize year
2022
Location
Turin, Italy
Year completed
2019 (Year began 2018)
Authors
Alberto Bottero (1984 Italy); Simona Della Rocca (1985 Italy)
Collaborators
Structural engineering: Sintecna Srl Coordination: Sintecna Srl Electrical: Proeco Ss Mechanical: Proeco Ss Building physics: Onleco Srl Acoustical: Onleco Srl Project management: FCA Partecipazioni SpA
Program
Education
Labels
Architecture, School
Total area
5579 m2
Usable floor area
5096 m2
Cost
total cost 7.300.000 €/m2
Client
Fondazione Agnelli, Compagnia di San Paolo
Client Type
private
Map
LatLng: (45.0339263, 7.671154)
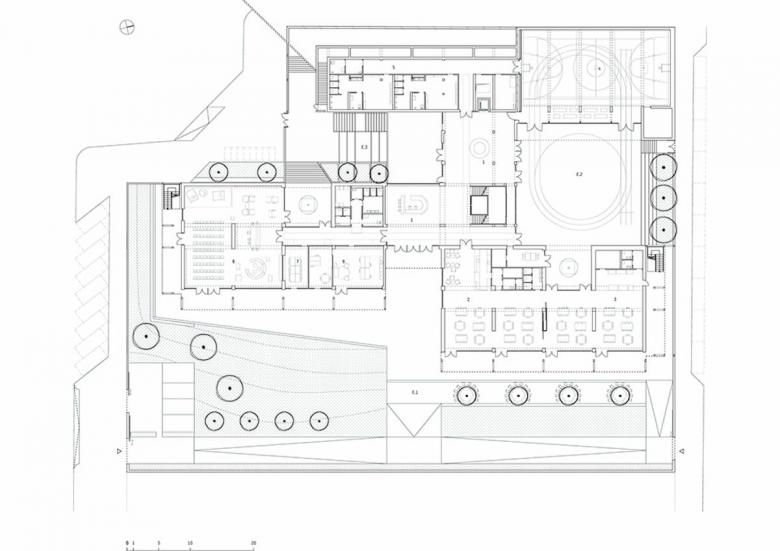
The project transforms a school of the 1960s in a semi-peripheral district of Turin, rethinking the architecture according to the school new pedagogical needs.
The transformation of Fermi School is part of the initiative Torino Fa Scuola, which renovated two public secondary schools through the engagement of school communities in the definition of pedagogical guidelines, with the ambition to renovate both learning spaces and teaching methods.
The chosen school is an example of a widespread typology on italian territory. The existing building had an interesting articulation of volumes, a poor relation with outern spaces and a series of underused interior spaces. Part of the strategy to reverse this condition lies on the reorganization of accesses and external areas as to open the school to the city.
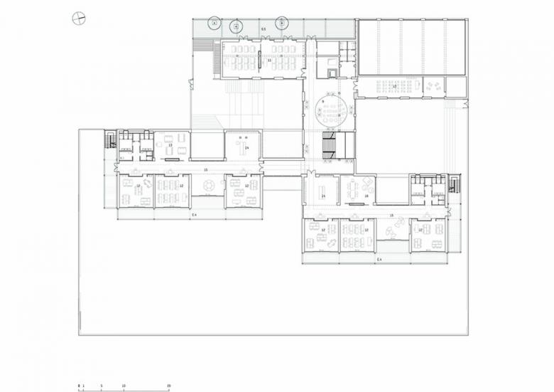
The new main entrance transforms the back of the building as a large, green, accessible, threshold space. The program is organized accordingly, favouring a continuous and controlled use of the building. The ground floor hosts activities open to the public while on the upper floors didactic units take place.
Recognizing some spatial qualities in the existing building, the intervention reorganizes the spaces and works mainly by addition. The request of renovating the building envelope was interpreted as an opportunity to innovate the entire school. Through the addition of new steel structures, didactic and recreational activities can be extended into outdoor terraces. As a result, the main front is design to become physically permeable outwards.
Interiors are reorganized according to the existing structure and form a sequence of comprehensible spaces in which furniture is conceived as a transformative element. Educational activities are organized in cluster, a spatial unit composed of classrooms, cloakrooms, services, informal learning spaces and didactic terraces.
The general organization create an interconnected system of internal and external learning environments, according to a model that refers to the didactic experiments of the open-air schools. This approach also justifies the attention given to the landscape design, as its presence accompanies students in everyday life.
Since the competition phase, construction was expected to last one academic year, to minimize the temporary displacement of the school community. This affected the design choices, proposing pre-assembled steel structures to speed up certain construction processing. The existing reinforced concrete structure has been maintained and made seismically suitable while the building envelope made energy-efficient.
The finishing material, colored plaster, is processed through the use of different grain, breaking the uniformity of surfaces and creating slight façade depths, according to the existing concrete exoskeleton. It is also a way to relate, with limited means and manners, to the variety of textures that characterized the constructions of the 60s. The work on colour and texture has transformed the caracter of the complex, redefining its identity within the neighborhood. Interior spaces have been design to provide the school with a domestic character without overdetermine them.















