Erweiterung Villa In Baden-Württemberg
Projektierung, Ausführung: Forsberg Architekten AG, Basel
Landschaftsarchitekt: Stauffer Rösch, Basel
Bauleitung: Höfler & Stoll Architekten, Heitersheim
Das grosszügige Grundstück liegt erhöht am östlichen Rand einer grösseren Stadt in Baden-Württemberg. Es verfügt über eine leichte Neigung hin zu einem bewaldeten Tobel, in dem ein kleiner Bach fliesst. Eine Villa aus den 50er Jahren steht selbstbewusst, quer zum Hang, umgeben von mächtigen Bäumen, einem grosszügigen Garten und dem angrenzenden Wald.
Die Villa sieht älter aus, als sie ist; die Architektur des Architekten van Taack weckt äusserlich mit Elementen wie Eckrisalit, Loggia und schwach geneigtem Ziegeldach Erinnerungen an Villen des norditalienischen Klassizismus. In den 60er Jahren wurde direkt nördlich vom Gebäude ein Holzhaus platziert, das leider wenig auf den Bestand einging und in der inneren Organisation der Gesamtanlage grosse Nachteile mit sich brachte.
Die Aufgabe war einerseits, den Bestand zum Wohnen wieder herzurichten, anderseits eine räumliche Erweiterung vorzuschlagen, die dem Bauherrn - einem Freund bildender Kunst aller Epochen - viel zusätzlichen Raum bietet. Abgerundet wird das Programm durch eine kleine Einliegerwohnung.
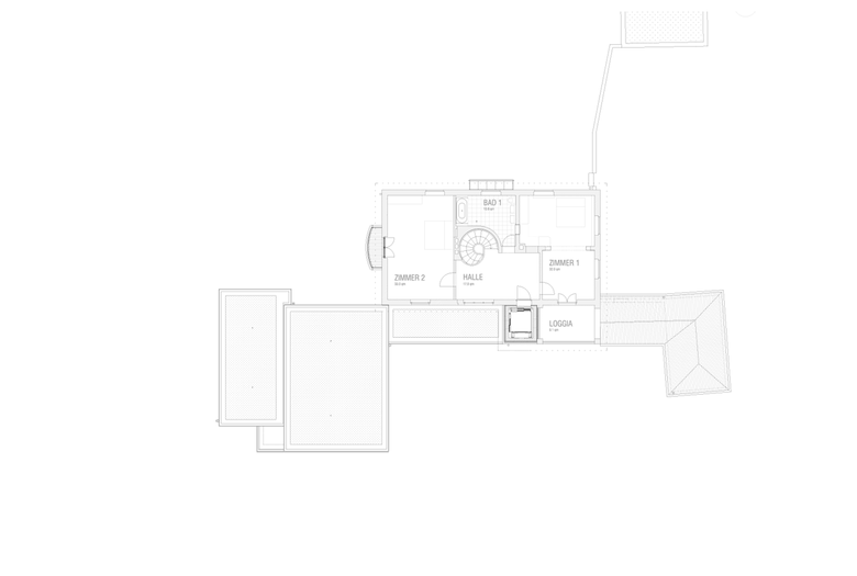
Während die ursprünglichen Bauten alle belassen wurden, musste der erste Anbau weichen, denn seine ungünstige Platzierung und Erschliessung führte dazu, dass wichtige Räume im Bestand zu korridorartigen Zonen degradiert wurden. Ferner versperrte er die ganz Nordfassade.
Zweifelsfrei bleibt das bestehende Haus in der neuen Gesamtanlage das erkennbare Hauptgebäude, dem Respekt gezollt wird. Trotzdem haben die neuen Volumina keine Berührungsängste und werden in Lage und Höhe passgenau an den Bestand gefügt, sodass sie räumlich gut ergänzen, erweitern und funktional erschliessen.
Gewünscht waren neben zusätzlichen Räumen auch grosse Wandflächen. Als optisches und haptisches Kontinuum wurde als Fassadenmaterial der weiss geschlämmte Backstein der Villa weitergeführt und in scheibenartigen, leicht zueinander versetzten Wandflächen zu einem neuen, ausgewogenen Ensemble komponiert. Im Innern ermöglichen die direkt aneinandergefügten Räume Rundgänge, die als Raumsequenzen den Wechsel von niedrig und hoch, dunkel und hell, Introvertiertheit und den Einbezug der bestechend schönen Umgebung unterschiedlich erlebbar machen.
Karl Friedrich Schinkel spricht bei seinen Entwürfen für die Römischen Bäder bei Potsdam 1829-1839, bei denen er pompejanische Vorbilder zitiert, von der Wirkung der vermeintlich gewachsenen Strukturen: So bildet diese Anlage ein malerisch-gruppiertes Ganzes, welches mannigfaltige angenehme Ansichten, heimliche Ruheplätzchen, behagliche Zimmer und offene Räume für den Genuss des Landlebens darbietet, und seiner Natur nach immer fortgesetzter Ausdehnung und Bereicherung fähig ist, so dass daran ein unausgesetztes Vergnügen der Produktion vorbehalten bleibt.
Die Räume des neuen Gesamtensembles laden die Nutzer zu einer Entdeckungsreise ein, bei der das reizvolle Wechselspiel zwischen Kunst, Architektur und Natur durch die gleichzeitige Benutzung der Räume als Wohn-, Ess-, Bibliothek oder Musikzimmer lebendig und einzigartig wird.
- 年
- 2017
- プロジェクトステータス
- 竣工済
関連したプロジェクト
Magazine
-
-
今週のビル
The Three-Body Problem: Trapped in a Wave Sandwich
Eduard Kögel, Scenic Architecture Office | 13.04.2026 -





















