Fabra & Coats & Social Housing
Barcelona, Spain
Name of work in English
Fabra & Coats & Social Housing
Name of work in original language
Fabra & Coats & Habitatge Social
Placement
Shortlisted
Prize year
2022
Location
Barcelona, Spain
Year completed
2019 (Year began 2017)
Authors
Mercè Berengué (1962 Spain); José Miguel Roldán (1961 Spain)
Collaborators
Design: Roldán Berengué arqts. Vicenç Sanz, Zana Bosnic, David Espuña Bernuz - Fernández arquitectes: Jordi Bernuz Caba: Josep Dalmau Building advising: Salvador Arisa
Program
Collective housing
Labels
Compact, Facilities, Linear block, Social
Total area
1628 m2
Usable floor area
5392 m2
Cost
1024 €/m2
Client
Barcelona City Council - Institut Municiapal de l'Habitatge
Client Type
public
Map
LatLng: (41.432354, 2.1907401)
The transformation project of the warehouse building of the old industrial complex of Fabra & Coats in Barcelona is included in the process of reconversion of this textile complex of the XIX and XX centuries to incorporate it to the "BCN creation factories" network.
SOCIAL HOUSING
The intervention in the building activates all the elements of the original building creating the new program, and reuses its physical, spatial and historical qualities to make the new construction more efficient and to reinforce the character of the original building.
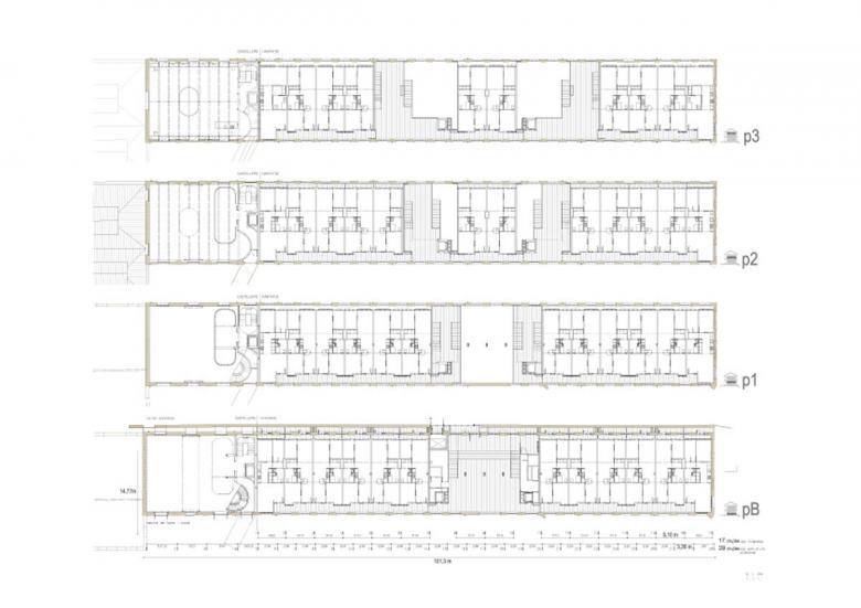
1. The original building is 100m long, where the first decision was to bring the value of its maximum dimension, which is the length. We access through the center creating an interior square where the promenade of the interior stairs begins in diagonal double ascending. The original building is communicated physically and visually from the ground level until the roof structure. This vestibule also connects the building to Parellada Street and the Fabra & Coats complex square. This new communal space is the new structural contribution to the original building.
2. The new construction is by assemblage, it is a dry construction with just few materials, as in the original industrial building. Wood is used in all its forms: solid, agglomerated, cross laminated... Materials are joined as if it was a textile. To sew and un-sew, the new construction by its character and assemblage, can be assembled and disassembled, so it is "reversible". The building, in the future, as a heritage element, can return to its original form of 1905, and the material used in its construction can be recycled.
Structural reuse of the two inner floors of the building, using them without any reinforcement (load capacity of 1,100kg/m2) to support on both floors the two new levels of housing. We convert two floors into four, to reach this we use a wooden structure, because it is 5 times lighter than a steel structure. The wooden frame structure is a translation of the old steel structures used as shelves for the storage of the threads.
3. Façade and roof of the building as a thermic buffer for the housing units. The new housing units are placed separated from the façade and the original roof of the building, with a new wooden façade.
The in-between space is created to circulate the air; therefore, the housing units do not require the air conditioning the most part of the year. The 45cm brick wall and the ceramic tile roof of the original building provide its thermal and shading properties to the new interior building, while maintaining its presence as an interior façade of the communal spaces. In this in-between space are the inner streets to access to the houses, identifying the old path of the thread packages through the crane bridge and the conveyor belts.
CASTELLERS
The former textile complex of Fabra & Coats in Barcelona, built between the 19th and 20th centuries, is being gradually recovered to incorporate it into the “BCN creation factories” network. More than 28,000m2 in public buildings and social housing will be added to the Sant Andreu neighborhood.
One side of the building, the result of an extension on 1950, has been destined for the headquarters of the “Colla Castellera Jove” in Barcelona. The adjacent building, 100 m long, has been transformed into a complex of 46 social housing units.
To configure the main space, the training room for human towers (10x10x10 m), is based on the analysis of human towers: pyramidal structures that work, ideally, with pure compression. Due to their operation, they fill the space, creating an empty space around them.
The new structure is conceived in a complementary way to a human tower: it works like a shell, creating an empty space inside. The upper floor under roof is a three-dimensional suspended structure that does not make its operation evident
LIGHTWEIGHT, DRY AND REVERSIBLE CONSTRUCTION FOR HERITAGE REHABILITATION
The project combines for the first time the rehabilitation of industrial heritage, the creation of social housing and wood construction. The elastic joints of the new elements resolve the compatibility between the two constructions and achieve acoustic comfort in homes that is higher than the standard.
A. Conditions
1. Minimum dimensions in construction solutions
2. Economic limit: PEM € 1,021 / m2
3. Reversible construction in response to equity
B. Implemented solutions
4. Light construction
5. Activate the building
6. Elastic joints in new construction
C. Achievements:
7. Rehabilitation in place of new construction:
8. Reduction of consumption in construction
9. Reduced demand in operation
- 年
- 2019
- プロジェクトステータス
- 竣工済
関連したプロジェクト
Magazine
-
-
-
今週のビル
The Three-Body Problem: Trapped in a Wave Sandwich
Eduard Kögel, Scenic Architecture Office | 13.04.2026 -

















