Gallery COMMON
日本
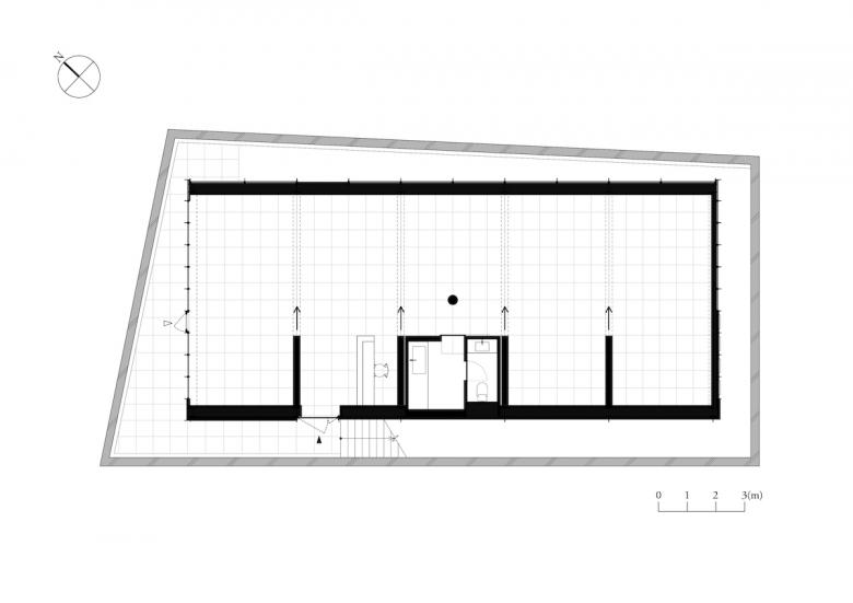
東京、原宿エリアにあるアートギャラリー「Gallery COMMON」の移転に伴う内装計画。施主は原宿を拠点に様々なアートスペースを運営しているクリエィティブエージェンシーで、「Gallery COMMON」においても独自の視点で選び抜かれた作品を通して、新たな価値観やカルチャーを発信してきた。移転先となったのは、外部階段から直接アプローチが可能な、鉄骨建築の地下一階フロア。地下には珍しく圧倒的な天井高さがあり、さらには区画の外周が四方ドライエリアで囲まれていたため、地上階とは異なる柔らかい自然光が入ってくる環境であった。この特徴は空間として非常に魅力的であったが、ギャラリーとしてはガラス面が多く、展示を行うためには支障があった。そこで打ち合わせを重ねた結果、私たちは室内の採光を最も広いドライエリアのある一面のみに集約し、それ以外の開口部は白い壁として再構成し直すことにした。これにより、空間全体では理想的な壁量を確保しつつ安定的な調光環境を作ることが可能になると共に、その一部にはドライエリアと連続した明るい特徴的な空間を作ることができた。また、展示システムには既存天井を横断していた4本の梁(H型鋼)を利用。重量用レールを取り付けるためのアダプタをオリジナルで製作し、厚み25cmの大きな可動壁で様々な展示シーンを作ることを考えた。そして、水回りなど最低限必要な機能をこの可動壁の寸法に合わせて計画し、可動壁を違和感なく収納できるようにした。床の素材には、表面を荒らしたビシャン仕上げの石材を使用。これをマス目状に張り込み、可動壁の位置を決める目盛としての機能を持たせた。シンプルな空間ながらも、自然素材を用いることで硬質さと柔らかさを兼ね備えた空間を目指した。
クライアント:en one tokyo Inc.
計画種別:内装設計
用途:ギャラリー
計画期間:2020年12月~2021年8月
計画面積:154.18平米
計画地:東京都渋谷区神宮前
設計:ケース・リアル 二俣公一 大仁田雄輝 須藤綾香
施工:ディーブレーン
照明計画:BRANCH LIGHTING DESIGN 中村達基



























