Turnhalle auf dem Tempelhofer Feld
Berlin, ドイツ
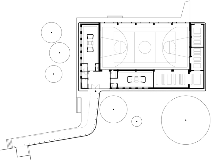
Die Turnhalle entstand im Zuge der Neuerrichtung der Schule auf dem Tempelhofer Feld und gehört heute zu den sanierungsbedürftigen Gebäuden der 50er Jahre, die den Sprung zum Einzeldenkmal nicht geschafft haben, obwohl ihre Konstruktion und Gestaltung mit vergleichsweise bescheidenen Mitteln eine überraschend sinnliche Leichtigkeit ausstrahlt, die den Glauben an einen politischen Neuanfang nicht besser transportieren könnte.
Der Umbau und die Sanierung der Turnhalle hilft, die in Teilen verschütteten ursprünglichen Qualitäten wiederherzustellen und mit dem Wissen aktueller Raumerfahrungen zu überhöhen. Turnen kann wieder als ein heiteres Zusammenspiel von Körper, Seele und Raum erlebt werden.
- 年
- 2011
- プロジェクトステータス
- 竣工済
- チーム
- Bezirksamt Tempelhof-Schöneberg









