Housing Complex in Heerhugowaard
Koraal Street , Heerhugowaard, オランダ
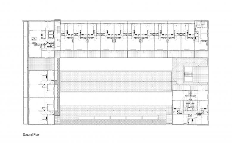
Urban Plan
Three different buildings surround a large inner space.
In this courtyard we find the car park. Partially closed and covered with vegetation, it offers the backdrop to the scene.
The buildings contain dwellings. They vary in volume and floor plan, and set out to configure an urban form that adapts to the place and the use.
The dwellings aim to offer high levels of interior quality and all have large outdoor terraces.
The resulting form is designed to adapt to the domestic nature of the whole and aims to be qualitative, varied, artisanal, multiple and human.
It sets out to avoid the abstract, monotonous rigidity of many examples of contemporary dwellings.
Material
Working with matter is a mental activity, but it involves experimenting physical, sensible presence.
In Heerhugowaard (Holland), as we construct dwellings, we experiment with the prototype in the timberwork of part of the facings.
On site, we begin with the samples of bricks, and this constant movement of hands and textures.
The idea behind its rugged, rustic, varied envelope is to avoid typical Dutch abstraction and generate a more complex, perhaps baroque, skin than is usual, as an immediate reaction to the nearby domesticity.
The harder, most superficial layer uses different colours and textures of brick, a traditional Dutch material, while a second layer of painted timber anchors the building in its setting.
In the framework of this project, experimentally, construction is purely digital (that is, paperless), with rationality, efficiency and prefabrication as the clear protagonists. The project accepts these coordinates with pleasure and, in large parts, further introduces places and surfaces that remind us of the archaic conditions of construction, the artisan meeting of hand and head.
As a possibility, too, of sensible, material expression in contact with domestic life, for which these buildings are intended.
- 年
- 2020
- プロジェクトステータス
- 竣工済
- クライエント
- Bouwbedrijf M.J. de Nijs en Zonen B.V
- Structure
- Van Rossum
- Mechanical, Electrical and Plumbing (MEP)
- Hiensch
- Nieman
- Building Physics
- Engineering
- Koppes Bouwkunde
- Photographs
- Aldo Amoretti + Jeroen Musch




















