Innocean Headquarters Europe
Frankfurt/Main, ドイツ
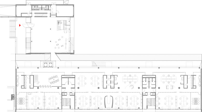
Die international operierende Werbeagentur INNOCEAN mit Stammsitz in Korea bezieht in Frankfurt am Main eine neue Europahauptzentrale. Für das junge, designorientierte Unternehmen entsteht eine flexible und moderne Arbeitswelt, die auf die unterschiedlichen Arbeitsbereiche des Unternehmens abgestimmt ist.
Dynamik und Bewegung kennzeichnen die Gestaltungselemente, die Angestellte und Besucher schon beim Eintritt in die großzügige Empfangshalle aufnehmen. Diese Elemente führen durch die offenen Arbeitszonen und die eigens eingerichtete Mitarbeiterbibliothek bis in den hauseigenen Fitnessbereich im 5. Obergeschoß mit faszinierendem Blick über Frankfurt. Polygonale Raumelemente und eine breit aufgefächerte Materialwelt stehen für den hohen gestalterischen Anspruch des Unternehmens selbst. Offene und transparente Arbeitsbereiche, gepaart mit halböffentlichen und diskreten Besprechungszonen fördern eine kreative und kommunikative Arbeitsatmosphäre.
Kunde
Innocean Worldwide Europe GmbH
Fläche
2800 m²
Team
Andrew Bardzik Anke Stern, David Schwarz, Frank Peisert, Sebastian Tiedemann, Yuliya Lytyuk, Gunter Fleitz, Peter Ippolito, Daniela Schröder, Tim Lessmann










