John F. Kennedy Haus am Hauptbahnhof, Berlin
Berlin, ドイツ
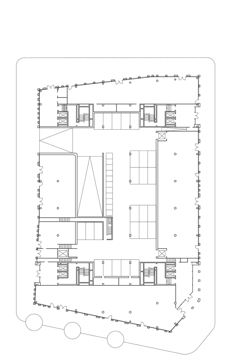
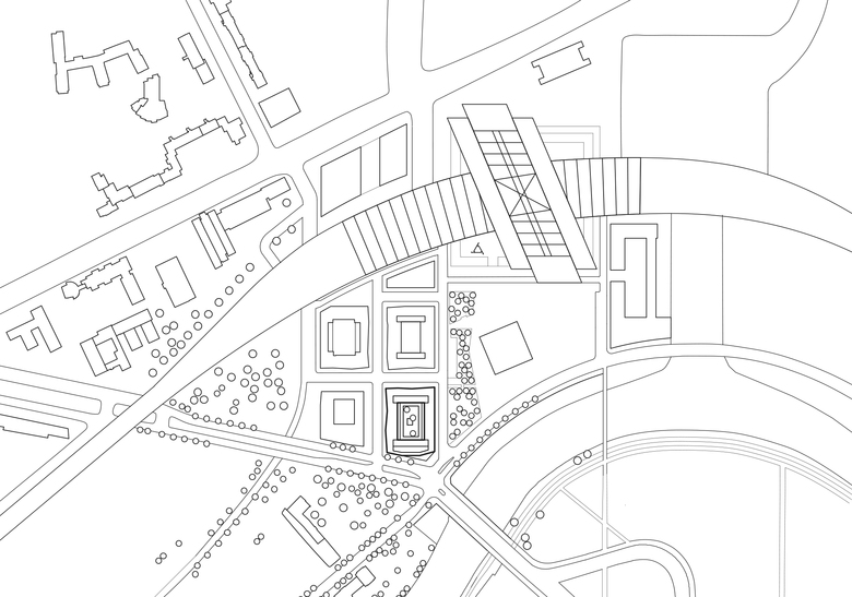
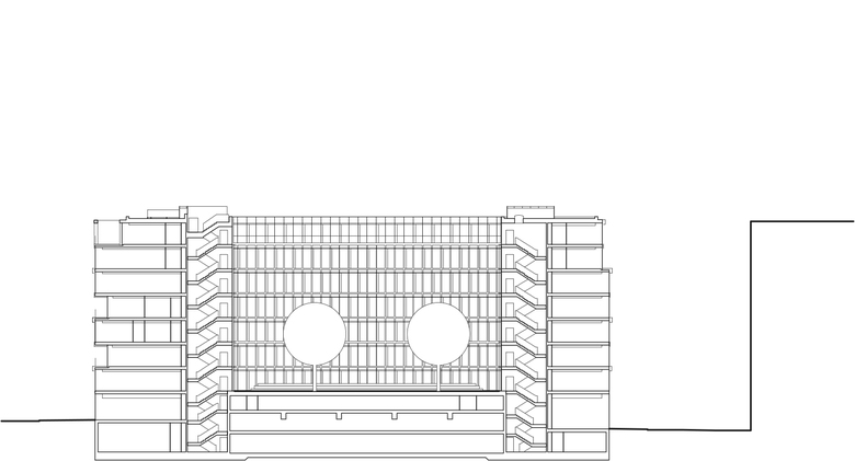
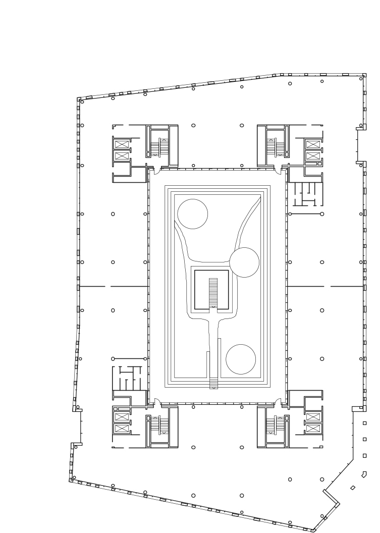
Das Bürogebäude in unmittelbarer Nähe zu Hauptbahnhof und Regierungsviertel bildet einen der vier Stadtbausteine des Lehrter Stadtquartiers. Fassadenflächen aus hellem Naturstein im Wechsel mit dahinter zurücktretenden Glasflächen definieren die äußere Schale, während sich die Gebäudeinnenseiten mit vollflächigen Glasfassaden zum begrünten Innenhof öffnen. Um die Höhe des Gebäudes zu gliedern, werden über die Fensterformate formal je zwei Geschosse zusammengefasst, die mittels leichter Geschossversprünge in Dialog mit den anderen Stadtbausteinen mit gleichen Gestaltungsregeln treten.
Auftraggeber
CA Immo Deutschland GmbH, Berlin
Bruttogeschossfläche
23.060 m2 /
Brutto-Rauminhalt
102.540 m3
Leistungsbild
Lph. 2 – 5, + künstl. Oberleitung (HOAI)
Gesamtkosten
KG 200 – 700 brutto, 47 Mio. Euro
Zertifizierung
DGNB „Platin”, 2016













