Neubau Haus Meyer-Berni «wohnen am valser rhein»

写真 © Francesca Giovanelli, Birr

Das Bündner Bergdorf, Vals südlich von Ilanz, ist Heimat und Wunschlebensraum unserer Bauherren. Einen Ort zum «Wurzeln schlagen» fand die vierköpfige Familie mit dem Bauplatz an der Valléestrasse nahe ihres alten Lebensmittelpunktes am Rande des Dorfzentrums.
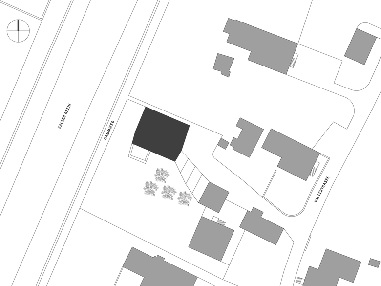
Das annähernd quadratische Baugrundstück grenzt direkt an den nordwestlich verlaufenden Dammweg, einem reizvollen Spazierweg entlang des Valser Rheins, der die Grenze zwischen bebautem Bereich und weitgehend unberührter Natur bildet. Der gegebene städtebauliche und landschaftliche Kontext ist bedeutender Teil der Entwurfsaufgabe und über das Schaffen spezifischer Blickbeziehungen und Interaktionsmöglichkeiten zum Ausdruck gebracht worden.

Die Ausrichtung des an den Giebelseiten abgewinkelten Baukörpers orientiert sich an den Umgebungsbauten, nimmt deren Positionierung auf und fügt sich somit harmonisch in die gegebene städtebauliche Situation ein. Der Zugang zum Haus erfolgt von der Valléestrasse über eine Zufahrt und den vorgelagerten Vorplatz mit Besucher-Stellplätzen. Der effektvoll verputzte Baukörper mit dem ortstypischen Steindach ist asymmetrisch von verschieden dimensionierten und positionierten Öffnungen durchbrochen, welche die dahinterliegende Geschossigkeit und räumliche Struktur nur erahnen lassen und die Fassade in eine spannungsvolle Erscheinung tauchen. Die vertikale Rillen-Putzstruktur zieht sich ähnlich wie die Rinde eines Baumes um das gesamte Gebäude, dessen dezente natürliche Farbgebung in einen ausgewogenen Dialog mit den Umgebungsbauten tritt. Die gezielt gesetzten Fenster mit Lüftungsflügel sind von massiven Betonelementen gerahmt, welche einen sichtbaren und haptisch spürbaren Materialwechsel zur verputzten Fassade bilden. Sie werden an anderer Stelle wieder aufgegriffen und finden ihre Verwendung zum Beispiel an den Wänden und der Decke des in das Gebäudevolumen integrierten Autounterstandes und auf dem Boden des vorgelagerten Sitzplatzes, der sich an den Wohn- und Essbereich angliedert. Der Sitzplatz ist die Verbindung zwischen Innen- und Aussenraum und ist teilweise durch eine Natursteinbrüstung gefasst. Die in der Höhe ansteigende Brüstung ermöglicht eine angenehme Offenheit zur Umgebung sowie Ausblicke in die Valser Berglandschaft ohne dabei vollkommen auf Privatheit verzichten zu müssen.

Sobald man den Zugang zum Haus über die raumhohe hölzerne Eingangsfront durchschritten hat, erlebt man auch im Inneren die Liebe und Sorgfalt zum Detail. Bereits die Eingangstür zeigt sich ähnlich wie der Aussenverputz in einer vertikalen Relief-Struktur, ausgedrückt durch eine in der Tiefe variierende Holzlattung, die ein spannendes, stetig wechselndes Licht- und Schattenspiel bewirkt. Im Entree erfährt man über die zentrale Treppenanlage das Spiel mit der aussen versteckten Geschossigkeit. Das Konzept des Split-Levels resultiert aus dem bewussten Umgang mit dem natürlichen Geländeverlauf und ermöglicht spannende Blick- und Raumbezüge zwischen Innen und Aussen. Im Innenraum selbst wird man begleitend von einer liegenden Holz-Sockelleiste durch das Gebäude geführt, welche über die Breite der Türrahmen aufgenommen und dynamisch weitergeführt wird. Der Mittelpunkt des Familienlebens ist im Hochparterre mit Küche, Ess- und Wohnbereich, die dabei entstehenden Funktionszonen sind durch verschieden hohe Räume differenziert, die gesamthaft eine dynamische Einheit mit fliessenden Übergängen bilden.

Die Materialisierung und Farbkonzeption des Hauses ist in Zusammenarbeit mit der Tessiner Künstlerin Adriana Beretta erfolgt. Ihr Vorschlag zur Innenraumgestaltung umfasst unter anderem die Gestaltung des Bodens mit einem dunkel geräucherten Parkett, die Gestaltung der Wandflächen in gedecktem Weiss mit grünen Pigmenten und die dezent abgetönte weisse Farbgebung mit roten Pigmenten für fixe Einbaumöbel. Eine deutliche farbliche Differenzierung verkörpern die Nassbereiche, welche sich über die Wandfarben Grau und Curry und über den regional Valser Granit am Boden von den restlichen Räumen des Hauses abgrenzen. Der Innenraum beschreibt eine ruhige und ausgewogene Gemütlichkeit, die durch die Anordnung des traditionellen zentralen Kaminofens im zweigeschossigen Wohnraum verstärkt wird und respektvollen Bezug zur Geschichte des alpinen Bauens nimmt. Die Materialisierung des Kamins ist regional geprägt und wichtiger Bestandteil des Gesamtkonzepts. Umgeben von einer mit Betonelementen verkleideten Sitzbank, ist der moosgrün eingefärbte, verputzte Kaminofen eine optimale Wärmequelle, die ein angenehmes Raumklima ermöglicht und im Winter für wohlige Wärme und gemütliche Stimmung sorgt. Der zentrale Wohnraum ist so nicht mehr nur einfacher Aufenthaltsraum, er wird zum Herz des Hauses, hier erlebt man die gesamte Raumdimension bis unter das Dach und hat unterschiedlichste Ausblicke durch die gerahmten Fensterbilder in die raue Valser Berglandschaft. Ein Halbgeschoss höher befindet sich neben dem Gästezimmer, ein halboffener Arbeits- und Bibliotheksbereich, welcher keine bauliche Trennung zum Wohnraum aufweist, lediglich der Höhenversatz am Boden und der Decke weisen auf die unterschiedlichen Funktionen hin. Eine weitere Besonderheit übernimmt hier das Fenster, welches neben der Funktion des rahmenden Elements über die tiefe Leibung räumlich erfahrbar wird. Es bietet Platz zum Verweilen, Entspannen, Lesen und Träumen.

Text: Juliane Reuther, Schnieper Architekten

Publikationen
2016 – Häuser Sonderausgabe «Die 100 Besten Architekten für ihr neues Zuhause»
2016 – Maisons et Ambiances Nr. 6/16 «Belles vibrations»
2014 – Raum und Wohnen Nr. 12/14 ⋅ 1/15 «Die Leichtigkeit des Steins»

Situation
Hochparterre
Schnitt
Südfassade
建築家
Schnieper Architekten
2011
プロジェクトステータス
竣工済

関連したプロジェクト 

  • Moos
    playze
  • Reiters Reserve Premium Suiten
    BEHF Architects
  • Erweiterung und Instandsetzung Hallenbad Altstetten
    MIYO Visualisierung
  • Neubau von fünf Einfamilienhäusern
    Bäumlin+John AG
  • The Forge in der 105 Sumner Street in London
    Kiefer Klimatechnik GmbH

Magazine 

Schnieper Architekten によるその他のプロジェクト 

Neubau Haus Stigler
Rieden SG , スイス
Werkhalle & Büros «am Teuchelweiher»
Diessenhofen, スイス
Neubau Haus Raeber-Niederberger
Weggis, スイス
Neubau Haus «Sunnerain» Hertenstein
Weggis, スイス
Neubau Haus Optiker
Lungern, スイス