Neubau Via Mulin
Via Mulin 1, Ilanz, スイス
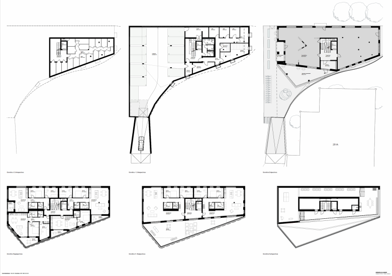
Das Neubauprojekt in Ilanz bietet Wohnraum für jede Lebensphase und vereint modernen Wohnkomfort mit der Lebensqualität der Surselva.
Die neuen Wohnungen verknüpfen zeitgemässe Architektur mit alpiner Harmonie. Helle Räume, hochwertige Materialien und durchdachte Grundrisse schaffen eine Atmosphäre, die Ruhe und Geborgenheit ausstrahlt. Grosse Fensterfronten eröffnen den Blick in die Natur – und lassen das Gefühl von Freiheit täglich spürbar werden.
- 年
- 2026-2027
- プロジェクトステータス
- 建設中











