Neue Nationalgalerie
Berlin, ドイツ
Neue Nationalgalerie refurbishment
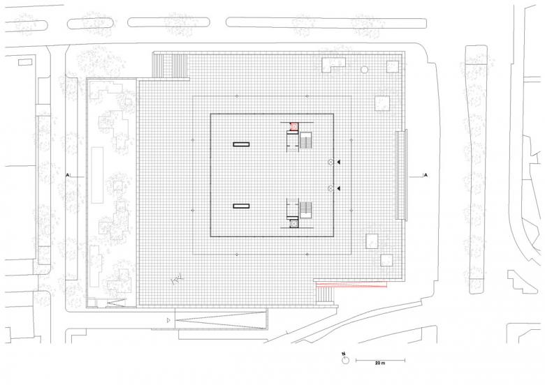
The Neue Nationalgalerie in Berlin is an icon of twentieth-century architecture. Planned and built from 1963 to 1968, the steel and glass temple on a natural stone podium is the only building designed by Ludwig Mies van der Rohe in Europe after his emigration to the USA.
After almost fifty years of intensive use, the listed building required a comprehensive refurbishment. In the course of the refurbishment, the disabled access, the handling of the art and service facilities for visitors such as the cloakroom, café and museum shop had to be improved. Air conditioning, artificial light and security had to be adapted to today's technical standards.
The key to the complex planning process for this project was finding a suitable balance between monument conservation and the building’s use as a modern museum.
The unavoidable interventions to the original fabric within this process had to be reconciled with preserving as much of the original substance as possible.
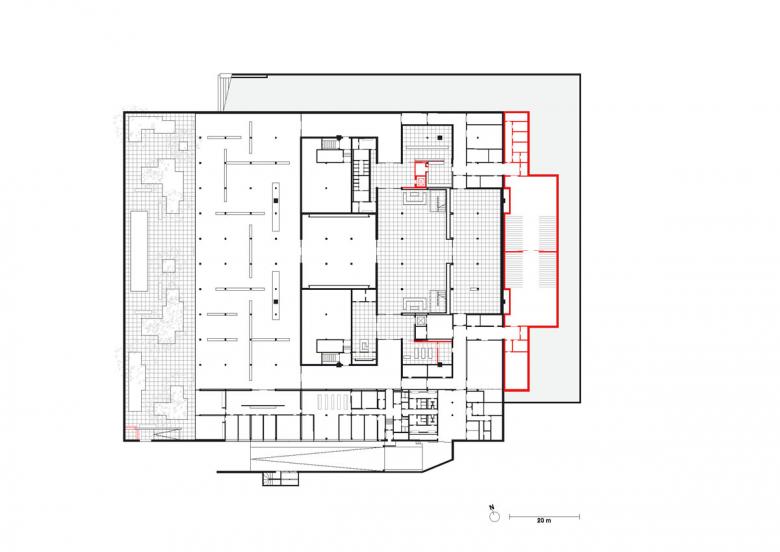
The necessity of an extensive repair of the reinforced concrete shell and the complete renewal of the technical building services required an in-depth intervention. In order to expose the shell construction, around 35,000 original building components, such as the stone cladding and all the interior fittings, were dismantled. After their restoration and modification where necessary, they were reinstalled in their precise original positions.
The aim was to preserve or restore the appearance of the building.
Though the essential additions remain subordinate to the existing design of the building using, they are nevertheless discreetly legible as contemporary elements. The refurbishment project does not represent a new interpretation, but rather a respectful repair of this landmark building of the International Style.
The basic building structure, such as the shell and the steel construction of the roof and the façade, was preserved and renovated in situ.
As far as the finishing materials are concerned, a distinction can be made between timeless materials such as natural stone (granite and marble), brown oak, steel, bronze and glass and time-bound materials such as the modular suspended ceilings in the basement, the carpeting and woodchip wallpaper in the collection rooms and the curtains.The materials of both categories were considered equally important and were preserved or reproduced in consideration of the requirements.
A conscious decision was made not to visually "freshen up" the appearance of the monument. Traces and damage due to use and age were accepted, and major damage was repaired using the methods customary in monument conservation.
The material canon of the newly created public spaces, cloakroom and museum shop, is based on the timeless materials of the existing building - natural stone, brown oak and steel. The cloakroom and shop are recognisable as new spaces by leaving the raw concrete walls and ceilings of the rooms formerly used as storage spaces.
- 年
- 2021
- プロジェクトステータス
- 竣工済
- クライエント
- Stiftung Preußischer Kulturbesitz represented by the Bundesamt für Bauwesen und Raumordnug
- Year completed
- 2021 (Year began 2016)
- Authors
- David Chipperfield (1953 United Kingdom); Martin Reichert (1964 Germany)
- Collaborators
- Collaborator (external): BAL Bauplanungs und Steuerungs GmbH, Berlin Structural engineering: GSE Ingenieurgesellschaft mbH Saar, Enseleit und Partner, Berlin Building technology: Ingenieurgesellschaft W33 mbH with Domann Beratende Ingenieure GmbH, Berlin
- Total area
- 22‘011 m2
- Usable floor area
- 13‘900 m2
- Cost
- 4540 €/m2
- Map LatLng
- (52.506967, 13.3674985)
















