Rejuveron Life Science - Dive in
Wagistrasse 18, Schlieren, スイス
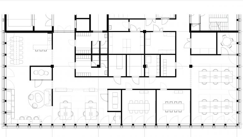
Die neuen Innenräume für das Rejuveron Head Quarter im Bio Technopark in Schlieren fördern ein innovatives Arbeitsplatzkonzept, das den Standard-Grundriss und die Aufteilung in kleinen Büros aufbricht und eine integrativere und wohnlichere Arbeitssituation bietet, in der Zusammenarbeit und spontanes Zusammenkommen über Abteilungsgrenzen hinweg unterstützt werden.
Im Küchen-Lounge-Bereich ziert eine Tapete aus realen Forschungsberichten den informellen und einladenden Raum.
Besonderes Augenmerk wurde auf die – in den Aroma-Werkstätten hergestellten – Holzmöbel gelegt, die sich perfekt in den Raum einfügen und einen lokalen und nachhaltigen Produktionsprozess unterstützen. Dazu gehören zum Beispiel leichte Trennelemente zum Flur und zu den Arbeitsplätzen, die nicht nur als Sichtschutz dienen, sondern auch als Ablage- und Präsentationsflächen, zur Begrünung und als Sitznischen genutzt werden.
In die 300 Quadratmeter grosse Bürofläche wurden fünf einzigartig gestaltete Besprechungsräume und "Quite Booths" integriert. Jeder von ihnen ist einem Tier mit einer aussergewöhnlich hohen Lebenserwartung gewidmet, um an den Forschungsbereich anzuknüpfen. Das Design sämtlicher Raumelemente orientiert sich an wissenschaftlichen Aspekten und ist eine künstlerische Interpretation des Tieres in seiner Umgebung, um jedem Raum einen inspirierenden Touch und Charakter zu geben.















