Geschäftshaus Schader
General-Guisan-Quai 26, Zürich, スイス
Studienauftrag 1. Preis – Der ehemalige Schweizer Hauptsitz von IBM, an zentraler Lage nahe dem Zürcher Seebecken gelegen, entspricht technisch, energetisch und qualitativ nicht mehr den heutigen Anforderungen. Im Rahmen eines Studienauftrags entwickelte Fischer Architekten einen überzeugenden Vorschlag für eine ganzheitliche und nachhaltige Gesamtsanierung.
–
Das Geschäftshaus am General-Guisan-Quai wurde zwischen 1969 und 1973 vom Architekten Jacques Schader geplant und erstellt und befindet sich heute im Inventar der kunst- und kulturhistorischen Schutzobjekte von kommunaler Bedeutung. Es wird gerahmt durch das weisse und das rote Schloss, zwei mächtige, stark gegliederte gründerzeitliche Ensembles.
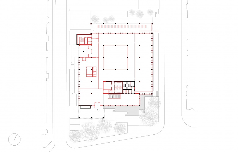
Ziel der Sanierung ist es, die bewährte Architektur von Jacques Schader gebührend zu würdigen und weiterzuentwickeln. Die Eingangshalle soll auch künftig die Hauptadresse und räumliche Visitenkarte für das selbstbewusste Geschäftshaus bilden. Der Zugangsbereich erfährt eine moderate Erweiterung und wird in das grosszügige Erschliessungssystem des Eingangsgeschosses eingebunden. Wichtigstes neues gestalterisches Element im Innenraum ist die Wiedereinführung eines mehrgeschossigen Atriums – welches Jacques Schader seinerzeit selbst entworfen hatte, aber nicht zur Umsetzung bringen durfte – als Fokus und Zentrum des offenen Erdgeschossgrundrisses.
Über einen neuen, sekundären Eingang werden die Atriumgeschosse an der Tödistrasse angeschlossen. Der Bereich zwischen den Eingängen lässt Raum für eine Nutzung mit Strassenbezug, etwa ein Café mit Bookshop. Mittels einer Aufwertung der Aussenanlagen entlang der Tödistrasse wird die Präsenz des Erdgeschosses im Strassenraum erhöht und eine gute Ankunftssituation für den Besucherverkehr geschaffen.
Über dem Haupteingang, mit vorgelagerter Loggia und Blick über Arboretum und See, kann Schaders Vorschlag einer kleinen Seminarzone gut entsprochen werden. Für die Nutzung der Regelgeschosse sind verschiedene Szenarien umsetzbar: eine Single-Tenant-Nutzung, eine Belegung durch mehrere geschossübergreifende Grossmieter oder die Vermietung von Teilflächen an kleinere Unternehmen. Im Attikageschoss lassen sich alternativ zu einer gemeinschaftlichen Nutzung Mietflächen für ein gehobenes Dienstleistungssegment realisieren, die jeweils von einer exklusiven vorgelagerten Terrasse profitieren.
https://www.fischer-architekten.ch/de/projekte/geschaeftshaus-schader-zuerich
- 年
- 2022
- プロジェクトステータス
- 竣工済
- クライエント
- Zürich Versicherungs-Gesellschaft AG













