Sporthalle Esplanade
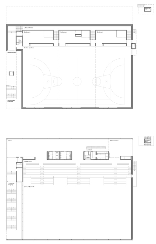
Vier liegende Baukörper – das Feuerwehrgebäude, die Zentralgarage und die beiden Neubauten – fügen sich zu einem flachen und dichten Häuserblock. Das Ensemble wird nicht durch die geplanten Strassenfluchten definiert, sondern durch eine radiale Anordnung der Volumina um den zentralen Schlauchturm. Durch die Auskragung der neuen Sporthalle über dem Feuerwehrareal wird in Reaktion auf die Ecksituation ein nahezu quadratischer Baukörper gebildet. Der Neubau ist auf zwei Hauptebenen organisiert: der Sportbereich liegt auf Strassenniveau, der Publikumsbereich befindet sich im oberen Geschoss. Er besteht aus zwei, durch ein Fensterband getrennten Körpern. Der monolithische Betonsockel dient als konstruktives Fundament, er wächst auf einer Seite zum Tribünenkörper und zum strukturell aussteifenden Element. Die Stahlstruktur bildet eine auf dem Betonsockel ruhende Haube. Sie wird als tragendes, mit einer Metallhaut bespanntes Gerippe mit sichtbaren Gliedern, Streben und Fasern interpretiert.














