Sportzentrum Heuried

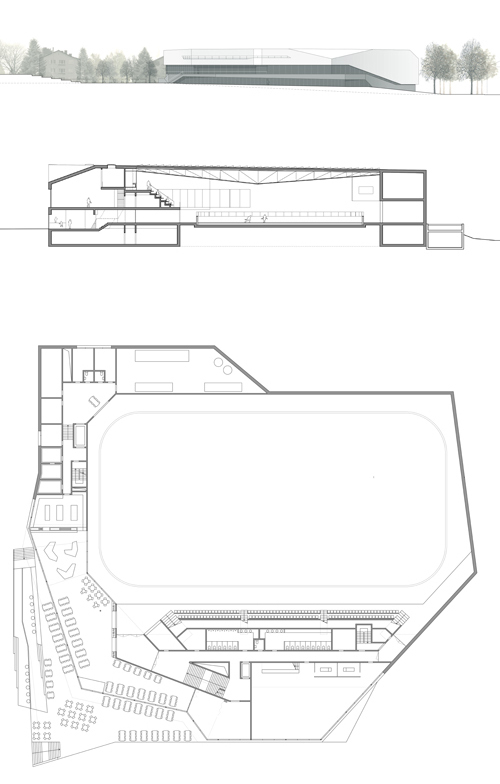
Eingebettet im Strassenraster am Fusse des Üetlibergs, zeichnet sich das neue Sportzentrum Heuried durch seine  gebrochenen Kanten und seinen geknickten Fassadenverlauf aus. Ähnlich einer abgedrifteten Eisscholle ruht der weiss schimmernde Baukörper auf einem als Felsplatte ausgebildeten Sockel. Ausschlaggebend für die Formgebung des Volumens ist jedoch weniger die Analogie zum dahinschmelzenden Eisblock als der Anspruch, den Neubau präzise in das Kräftefeld der Parkanlage einzupassen. Es gilt tatsächlich, den Baumbestand zu schonen, die nutzbare Freifläche zu vergrössern, die Sichtbezüge zu wahren, die funktionalen Zusammenhänge zu optimieren und die Wegführung prägnant zu gestalten; nicht zuletzt trägt die gebrochene Geometrie auch zur Integration der Baumasse in die Massstäblichkeit des Quartiers bei. Obwohl die rechteckige Eishalle als Hauptraum über 60% des Volumens ausmacht, tritt sie äusserlich nicht als solche in Erscheinung: vielmehr bestimmt die Funktion des Gebäudes als Drehscheibe zwischen Strasse und Park, zwischen innen und aussen, zwischen Sommer- und Winternutzungen den Ausdruck des Neubaus.

建築家
GXM Architekten
プロジェクトステータス
デザイン案

関連したプロジェクト 

  • Gymnasium Schulstraße
    Kronaus Mitterer Architekten
  • GROHE Water Experience Center
    D’art Design Gruppe GmbH
  • Limmatquai 4
    Kästli Storen
  • Volksschule Erlaaer Schleife
    Kronaus Mitterer Architekten
  • Ortsdurchfahrt Domat/Ems
    Luminum GmbH

Magazine 

GXM Architekten によるその他のプロジェクト 

Le Ticle Zentrumsüberbauung
Delémont, スイス
Multifunktionale Überbauung Gare des Eaux-Vives
Genf, スイス
Familien- und Generationenhaus
Zürich, スイス
Dauerausstellung MICR
Genf, スイス
Wohnwerkstatt
Dübendorf, スイス