Stadtbad Volkshaus Zürich
Die Architektur _ Ein Wechselspiel von Inszenieren und Verbergen
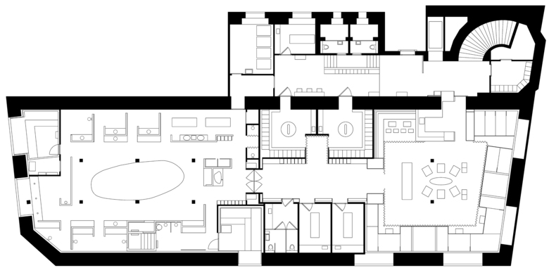
Beim Reinigungsritual im Hammam und in der Sauna spielt das Wohlfühlen, die Intimität aber auch die Begegnung und der gesellschaftliche Austausch eine zentrale Rolle. Die Architektur thematisiert dies sowohl auf der räumlichen wie auf der materiellen Ebene.
Heisser Stein und Gitterwerk
Im Bad bilden der Heisse Stein und ein Gitterwerk – der traditionellen Architektur entlehnt und neu formuliert - die zentralen architektonischen Elemente. Sämtliche Nutzungen wie Waschen, Schlammbad, Nebelduschen, Massage sowie Dampf- und Saunakabine sind rund um den zentral angeordneten ‚Heissen Stein’ in nischenartigen Räumen angeordnet, welche durch ein massives gemauertes Betongitter gebildet werden - ein Gitterwerk welches zugleich trennt und verbindet, welches intime Bereiche schafft aber auch Einblicke zulässt -. Ähnlich gruppieren sich im Ruheraum Liege- und Sitzplätze um die zentrale Mitte. Eine grosszügige Halle verbindet das Bad mit dem Ruheraum und erschliesst Behandlungs- und Nebenräume.
Echte Materialien – Sinnliches Erleben
Hitze, Feuchtigkeit und Geräusche sind die unsichtbaren Komponenten der Räume und der Architektur. Die verwendeten Materialien Beton, Metall, Massivholz und Textile Stoffe verstärken und unterstreichen neben ihrer optischen Wirkung die sinnliche Wahrnehmung der jeweiligen Nutzung. Der Badbereich ist geprägt von massiven, mineralischen Materialien – Beton in verschiedenen Ausprägungen bietet als Bodenbelag, Sitz- und Liegefläche mit gespeicherter Wärme und Feuchtigkeit eine erfrischende sinnliche Haptik. Wasserleitungen und Armaturen werden gezeigt. Im Ruheraum dagegen dominieren Holz und Textil und vermitteln einen angenehm wohligen Kontrast. Eine wichtige Ergänzung und Bereicherung zu den Materialien, Oberflächen und Farben, bilden die Kunstwerke welche sich in das Gesamte integrieren und dieses veredeln.
Licht
Auch die Beleuchtung der Räume folgt dem ambivalenten Prinzip von Zeigen und Verstecken. Manches wird inszeniert, anderes bleibt im Dunkeln. Speziell auch hier die beleuchteten oder leuchtenden Kunstwerke.
Dialog mit dem Bestand
Am stärksten zeigt sich der Bestand in der Tragstruktur, der massiven bis zu einem Meter dicken Umfassungsmauer in Stampfbeton und einer für die Zeit äusserst sorgfältig ausgeführten Betonrippendecke mit Längsunterzügen auf einer Doppelstützenreihe, welche in den drei Haupträumen – Bad, Halle und Ruheraum – freigelegt und inszeniert wird.
Projekt: Stadtbad Volkshaus Zürich
Adresse: Volkshaus Zürich, Stauffacherstrasse 60, 8004 Zürich
Totalsanierung Sauna- und Bäderanlage
Direktauftrag
Bauherrschaft: Stadtbad Zürich AG
Fertigstellung: 01/2012
- 年
- 2012
- プロジェクトステータス
- 竣工済
- クライエント
- Stadtbad Zürich AG
- チーム
- Lukas Felder, Peter Christen, Tobias Rihs, Réka Szabo, Sibylle Burkhardt, Silke Ebner















