Terminal 3 Flughafen Frankfurt
Frankfurt am Main, ドイツ
Mit dem neuen Terminal 3 am Flughafen Frankfurt am Main erreicht eines der größten europäischen Infrastrukturprojekte seine Zielgerade. Nach der baulichen Fertigstellung Ende 2025 wird das Terminal im April 2026 in Betrieb gehen. Bauherr ist die Fraport AG, die architektonische Planung und Begleitung erfolgte durch Christoph Mäckler Architekten sowie die CHM Airport Planung unter Prof. Christoph Mäckler.
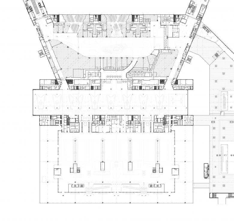
Dem Entwurf liegt das Konzept „Growing Beetle“ zugrunde, das 2005 aus einem internationalen Wettbewerb als Sieger hervorging. Wie ein Käfer gliedert sich das Terminal in klar ablesbare Teile: die großzügige Check-in-Halle als „Kopf“, das Sicherheitsgebäude und der zentrale Marktplatz als „Körper“ sowie die Piers als „Beine“. Diese funktionale Trennung schafft Orientierung und macht die komplexen Abläufe eines Flughafens räumlich intuitiv erfahrbar.
Im Mittelpunkt steht ein modulares, wachstumsfähiges System. Sämtliche Vertikalerschließungen und technische Schächte wurden bereits im ersten Bauabschnitt so angelegt, dass Erweiterungen im laufenden Betrieb möglich sind. Mit den Piers G, H und J stehen ab 2026 Kapazitäten für bis zu 19 Millionen Passagiere jährlich zur Verfügung. Im Vollausbau mit einem zusätzlichen Pier K kann die Kapazität auf bis zu 25 Millionen Fluggäste steigen. Insgesamt umfasst das Gebäude eine Grundfläche von 176.000 Quadratmetern, die Bruttogrundfläche beträgt rund 403.000 Quadratmeter.
Architektonisch versteht sich Terminal 3 als Stadtbaukörper. Piers, Gates und Lounges sind wie Straßen und Plätze organisiert. Durchgängige Wartebereiche von bis zu 600 Metern Länge ermöglichen flexible Andockpositionen für unterschiedliche Flugzeugtypen. Technikbrücken auf den Dächern bündeln haustechnische Anlagen so, dass Anpassungen an neue Technologien ohne Eingriffe in den Passagierfluss erfolgen können.
Natürliches Tageslicht, warme Natursteintöne wie Jura-Kalkstein und Travertin sowie beige eingefärbte Konstruktionen prägen das Erscheinungsbild. Die 18 Meter hohe, filigran konstruierte Glasfassade der Check-in-Halle reagiert elastisch auf Windlasten. Im Inneren schaffen der 6.000 Quadratmeter große Marktplatz mit Einzelhandel und Gastronomie sowie großzügige Blickbeziehungen zwischen Ankunfts- und Abflugebene eine hohe Aufenthaltsqualität – und einen architektonischen Rahmen, der Funktionalität mit Wohlfühlcharakter verbindet.
- 年
- 2025
- プロジェクトステータス
- 竣工済
- クライエント
- FRAPORT
- Maßnahme
- Neubau
- Architekt
- Christoph Mäckler Architekten / CHM Airport Planung
- Fertigstellung
- Ende 2025 (HBO-Abnahme/Übergabe Bauwerk)
- Eröffnung
- 1. Halbjahr 2026 (Passagierverkehr)
- Größe
- Grundfläche 176.000 qm / BGF: 361.000 qm
- Flugkapazität
- Bis zu 19 Mio. Passagiere (im Vollausbau 19 Mio.)























