The House for Two
Le Havre, フランス
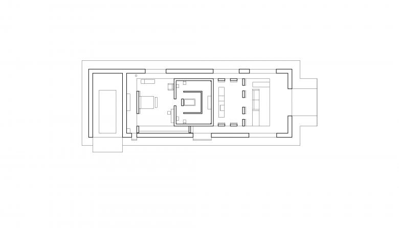
The House for Two is a spring residence conceived exclusively for the life of two people. The house is organised around a restrained yet expressive choreography of two primary spaces, positioned in deliberate contrast.
The first volume functions simultaneously as a public guest hall and dining space, defined by a wide opening that frames expansive views. Oriented toward the eastern horizon, the hall extends into an open-air parlour and a terrace garden, allowing interior life to unfold seamlessly into the landscape.
The second volume contains the bedroom. Its design is directly articulated with a bathroom on one side and a private gallery along the other, forming a continuous sequence of intimate spaces. At the core of the house, a concrete divider defines the most private zone: a water space illuminated by a precisely positioned skylight and accompanied by spatially articulated hygienic rooms—an expressive manifestation of the strong spatial unity between the two volumes.
The concrete–stone structure operates in close dialogue with the surrounding environment. The plan preserves the existing landscape features of the site, revealing the area’s unique natural character through deliberate architectural framing and compositional clarity.
- 年
- 2021
- プロジェクトステータス
- デザイン案
- クライエント
- Private






