Umbau Ebligen
Oberried, スイス
in Zusammenarbeit mit alma maki Architekten, Basel (www.almamaki.ch).
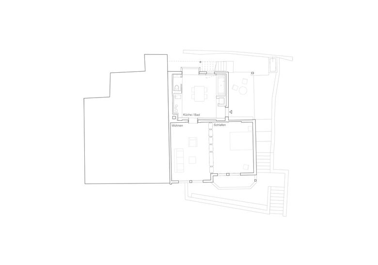
In einem alten Holzstrickhaus am Brienzersee wollte die Bauschaft eine Ferienwohnung umbauen lassen. Bei Umbauten in den 80er Jahren wurden erhebliche Teile der ursprünglichen Substanz zerstört oder unsachgemäss ergänzt.
Die Nord-Süd Ausrichtung in Verbindung mit den kleinen Fenstern und einer Raumhöhe von nur 2 Metern liess vor allem die Räume nach Norden, zum Hang hin, eng und dunkel wirken. Ausblicke beschränken sich auf wenige Meter. Im Gegensatz dazu ist der nach Süden ausgerichtete Hausteil hell und profitiert vom reizvollen Ausblick auf den See und die umliegende Berglandschaft. Dieser Gegensatz war Basis der Entwurfsidee, die Räume in ihren jeweiligen atmosphärischen Qualitäten zu steigern. Der niedrige dunkle Raum wird zu einem Rückzugsort nach innen, einer introvertierten behaglichen Höhle. Im Zusammenspiel mit den dunkelbraun lasierten, aus der Umgebung vertrauten Holzoberflächen entsteht so ein Ort, an dem das unmittelbare Nebeneinander von Feuer und Wasser archaische Assoziationen hervorruft. Das neue grosse Fenster mit Sitznische schafft dabei einen überraschenden Blick auf den nun fast japanisch anmutenden Garten.
Im Gegensatz dazu ermöglichen die hellen, luftigen Räume klare Gedanken und den Weitblick über den See. Vorgefundene, mehrlagige Tapetenreste wurden durch die präzise Bearbeitung und Freistellung zu kleinen autarken Kunstwerken umgewandelt, zu inszenierten Zeugen der Vergangenheit.
- 年
- 2014
- プロジェクトステータス
- 竣工済











