Vertical Farm
Romainville, フランス
Name of work in English
Vertical Farm
Name of work in original language
La Cité Maraîchère
Placement
Shortlisted
Prize year
2022
Location
Romainville, France
Year completed
2021 (Year began 2021)
Authors
Valérian Amalric (1975 France); Daniel Duckert (1980 Switzerland); Nicolas Genest (1983 France)
Collaborators
Engineering: Scoping Environmental: Etamine , Terreauciel Landscape architect: Land'Act
Program
Industrial
Labels
Farm
Total area
830 m2
Usable floor area
2060 m2
Cost
2476 €/m2
Client
Ville de Romainville
Client Type
public
Map
LatLng: (48.8799258, 2.4330466)
Opened to the surrounding district, Romainville’s vertical farm plays the role of a new landmark within the city aiming at highlighting ways of fostering healthy nutrition through short food chains, providing residents with low carbon footprint fresh produces all year long, by reducing the use of road transport and creating jobs at a local scale.
Located in Romainville in the outskirts of Paris, the vertical farm represents the culmination of the urban renewal initiated a decade ago.
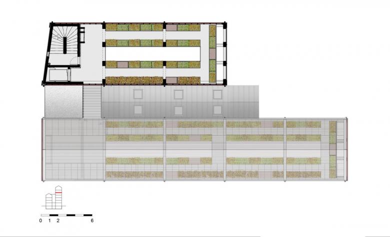
It is the first building of its kind to provide vertical urban farming in France. The groundfloor of the facility, dedicated to the public, allows access to a restaurant along with workshops and pedagogical gardens while the upper floors are used for crops production and harvesting.
The key purpose of the vertical farm is educational; the will to bring people together in questioning agricultural practices but also nutritional and environmental issues of our modern society.
The farm relates to its context by adopting an archetypal form, combining the imagery of agriculture and industry which are at the roots of the city’s identity, and by establishing a direct relation with the adjacent buildings both in terms of materiality and textures.
The main challenge was to provide suitable conditions for the cultivation of 1.000 square meters of above-ground planters on respectively three to six stories, all for a total footprint of barely 350 constructible square meters.
Following a layout inspired by traditional market gardening we intended to maximize both available cultivated area and natural light exposure.
Sun studies have allowed us to define the optimal orientation of the farm as to provide the best amount of light to grow crops.
Particular attention has been drawn on an ergonomic industrial process-like approach to ease the daily work of the urban market gardeners.
At ground floor, the inhabitants will have access to a restaurant, a point of sale of harvested produces from the upper floors, a greenhouse, and educational workshops with a view of the vegetable gardens. In the basement, additional spaces are installed, including an industrial composter, a wood-fired boiler room, a kitchen for the restaurant and a mushroom house.
Our design not only meets the needs of users but aims at fostering a responsible market gardening within an educational space conducive to exchanges between residents.
At the crossroads of a horticulture greenhouse, industrial building and public facility, the vertical farm has been designed in a rational way.
The constructive strategy is pragmatic; concrete has been chosen, over steel and wooden construction, as it is easily prefabricated, cost-efficient, resistant to a humidity rate of up to 80%, with excellent inertia, and able of supporting loads of more than one ton per square meter.
Bio-based natural products have been used elsewhere like cork and wood for façade insulation, furniture, and finishes.
As for the heating needs for public spaces, they are met through a wood-fired boiler whose fuel is renewable at a competitive cost while significantly lowering the overall carbon footprint.
Thus, the vertical farm has been designed as a bioclimatic environment combining renewable heat production systems and natural ventilation and lighting within a thermal efficient envelope.
In fact, the façade continuously adapts to climatic variations to obtain the most favourable conditions for plant growth (control and diffusion of natural light, solar protection and air circulation monitored by local weather station, etc.)
- 年
- 2021
- プロジェクトステータス
- 竣工済

















