Volksschulen Lehen I und II
Salzburg, オーストリア
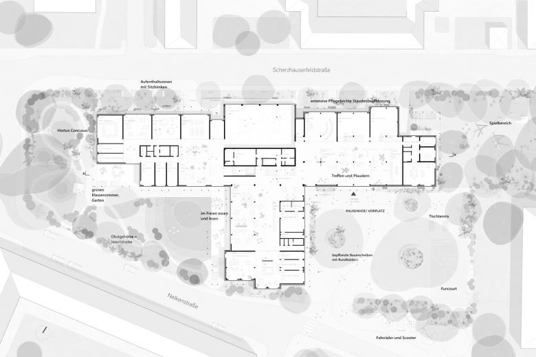
Der bestehende L-förmige Baukörper der Volkschulen I und II in Salzburg Lehen wird vollumfänglich saniert und durch einen 3-geschossigen Zubau im Westen erweitert. Durch den Abbruch des Schulwartgebäudes sowie durch die vollständige Neugestaltung und Nivellierung des Freiraums wird der nun einladende und barrierefreie Vorplatz das Entree der neuen – gemeinsamen - Volkschule Lehen.
Strukturell knüpft der neue Erweiterungsbau an die Logik des Bestandes an und wird als nachhaltiger Holz-Hybridbau umgesetzt. Das Erdgeschoß der neuen Volkschule enthält neben der neuen Zentralgarderobe Unterrichtsräume „für alle“, sowie Speisebereich, Aufwärmküche, Verwaltung und Beratungszentrum.
Die SchülerInnen werden künftig in neu entwickelten „Lernhäusern“ unterrichtet welche jeweils zentral über eine Kaskadenstiege entlang des bestehenden Turnsaaltraktes erschlossen sind. Dadurch wird der Zielsetzung eines Schulgebäudes der kurzen Wege entsprochen und die Distanzen aus jedem Lernhaus zu den restlichen Teilen des Schulgebäudes ähnlich und kurz gestaltet.
Wichtiger Grundgedanke des Entwurfes war es, möglichst gleichberechtigt hohe Qualitäten für alle Lernhäuser zu schaffen. Alle Lernhäuser sind 3-seitig belichtet, organisieren sich rund um den zentralen Marktplatz und bieten gute Übersicht für die Pädagoginnen und Pädagogen. Alle Lernhäuser sind als organisatorisch geschlossene Einheiten konzipiert. Die Marktplätze stellen die jeweilige Mitte der Lernhäuser dar. Sie sind direkt an die Freibereich angebunden und verfügen über direkte Belichtung und Belüftung.
Das Erscheinungsbild der neuen Volkschule Lehen ist geprägt durch umlaufende Balkone und Terrassen sowie durch Holz und Begrünung. Kletterpflanzen hüllen das Gebäude in ein grünes, klimatisch angenehmes Kleid und verweben Alt und Neu zu einem neuen, ganzheitlichen Erscheinungsbild. Die Fassaden werden durch Vor- und Rücksprünge gegliedert und bilden damit ein lebendiges und prägnantes Erscheinungsbild im öffentlichen Raum.
- 年
- 2027
- プロジェクトステータス
- デザイン案
- チーム
- Ondrej Kövér, PLOV Architekten ZT GmbH
- Aufgabe
- Sanierung und Erweiterung der Volksschulen Lehen I und II
- Landschaftsarchitektur
- 3:0 Landschaftsarchitektur







