Wein & Wahrheit
Sulzbach, ドイツ
Die etablierte Weinkellerei Höchst hat im neuen Erweiterungsbau des Main-Taunus-Zentrums eine zweite Dependance eröffnet. Für den neuen Laden stand eine Fläche von 80 m² zur Verfügung. Aufgabe war es, auf diesem kompakten Raum ein Sortiment aus mehr als 600 verschiedenen Weinen, Sekten und Spirituosen sowie Feinkost und Geschenkartikel zu präsentieren. Hier werden Auswahl und Beraterkompetenz des Händlers in einem sinnlichen Ambiente herausgestellt, das Shopping-Mall-Flaneure zur Mitnahme animieren soll. Der Blick von außen signalisiert deshalb sofort Weinkompetenz pur. Wie in einer Bibliothek ist der Laden an allen Seiten raumhoch mit Wein gefüllt; durch eine am Rand verlaufende Spiegeldecke multipliziert sich dieser zusätzlich in die Höhe. Über der sich so öffnenden Bühne schweben Glaskörper, die ein starkes key visual des Ladens bilden. In ihnen bricht sich das Licht wie in einem Glas bei Kerzenschein, und sie verleihen so dem modernen Raum eine Weinkelleratmosphäre, die man mit der Lust am Genuss assoziiert.
Zur Flächenoptimierung wurde die Fassade nach innen gezogen ist. Die Türen können sich so nach außen öffnen und blockieren dadurch im Rauminneren nicht die Bewegungsfläche. Gleichzeitig entfaltet der trichterförmig zulaufende Bereich eine Sogwirkung und lädt zum Betreten des Ladens ein. Fenster und Türen sind schwarz gefasst. In den Eingangsbereich wurde außerdem eine der beiden Bestandsstützen integriert, die schwarz verkleidet wurde. Auf Türsturz und Säule leuchten in weiß Logo und Namen der Weinhandlung und verleihen der Fassade eine exklusive Wirkung.
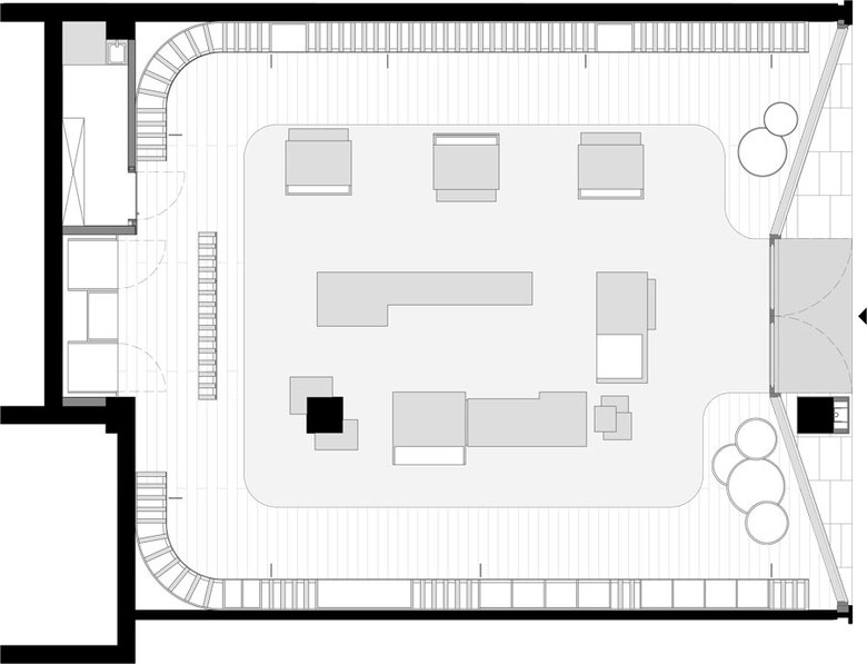
Die beiden Längswände füllen vollständig zwei Regalbänder aus weiß lackierter und gebürsteter Eiche, die auf die Stirnseite überlappen. Die 501 Fächer an diesen Wänden sind streng gegliedert. Die dabei entstehende homogene Lamellenstruktur wird durch eingelassene querformatige Regale in einem frischen Grün aufgebrochen. Vor der Stirnwand steht eine Regalscheibe mit weiteren 98 Fächern für Schaumweine. Dieser ist eine durchgehende Glasfront vorgesetzt, die von hinten beleuchtet wird, und dadurch am Raumende einen visuellen Fokuspunkt bildet. Flankiert wird die Regalscheibe von zwei Kreidetafeln, auf denen Aktionsangebote beworben werden können. Im dahinter verborgenen Bereich sind Kühlschränke und ein weiteres Regal für exklusive Champagner- und Sektsorten untergebracht.
Das Zentrum des Raumes bildet eine Gruppe aus Kassentresen, erhöhtem Degustationstisch sowie einem Verpackungstisch. Zwischen dieser Gruppe und der rechten Längswand stehen drei weitere Präsentationsmöbel; an einer Stütze sind zusätzlich zwei vertikale Regale befestigt. Alle Möbel sind in klaren, kubischen Formen gestaltet. Ihre Geometrie betont das Wechselspiel des Materials zwischen weißem Schichtstoff und geweißter Eiche. Die einzelnen Möbel werden durch ein abgerundetes Rechteck im Boden aus epoxidharzbeschichtetem Estrich gefasst, dass zum Eingang hinausgezogen wird. Außerhalb dieser Zone ist der Boden aus sägerauen Eichendielen.
Die Bodenmarkierung wird an der Decke wieder aufgegriffen. Hier formuliert ein Lichtgraben mit eingesetzten Spots das Rechteck. In dessen Innerem schwebt ein Himmel aus 150 mundgeblasenen Glaselementen in vier unterschiedlichen Farbtönen. Zwei Drittel davon werden durch LED-Leuchtmittel erhellt. Die außerhalb liegende Decke ist verspiegelt. Sie erhöht so den Raum visuell und vervielfacht das ohnehin große Angebot.
Die den Laden dominierenden Materialien sind Glas und Eiche, die beide auf die Welt des Weins referenzieren, auf Weinflaschen und Trinkgläser, auf Eichenfässer und Korkeichen. Sie bilden ein sinnliches Ambiente, das Genussmenschen direkt anspricht.
Neben der Ladengestaltung wurde eine neue Corporate Identity entwickelt. Der neue Name „Wein & Wahrheit“ unterstreicht die Beraterkompetenz. Mit elegant-schlichter Typografie und dem Logodesign wird eine Kundenschicht adressiert, die bei ihrer Kaufentscheidung besonderen Wert auf Qualität legt.
Kunde
Weinkellerei Höchst GmbH
Team
Peter Ippolito, Gunter Fleitz, Tilla Goldberg, Markus Schmidt, You Seok Na, Tim Lessmann








