Wohnhaus IKOOON
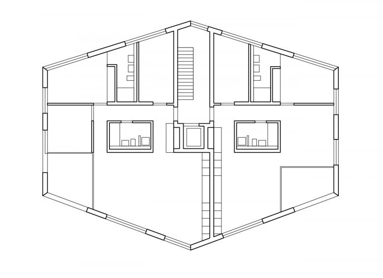
Das prägnante Wohnhaus in Zürich-Wollishofen mit neun individuellen Wohneinheiten entstand aus einer Projektentwicklung in enger Zusammenarbeit mit dem Auftraggeber. Ein sternförmige Grenzverlauf wird zum bestimmenden Faktor und zur besonderen Herausforderung zugleich. Der komplexe Baukörper, dessen Gestalt stark durch die Einbindung der Aussenräume geprägt wird, ergibt ein städtebaulich stimmiges Erscheinungsbild im Quartier.
Prägendes Element des Entwurfs sind die von Metallzargen gefassten Panoramafenster und Loggien, welche den Baukörper strukturieren. Die heterogene Form wird durch das versetzte Fugenbild eines Läuferverbands mit vorgehängten Glasfaserbetonplatten und durch die über Eck gezogenen Fenster und Balkone spürbar. Dabei wurde der Fokus auf eine hohe Privatheit der Aussenflächen und einen maximalen Lärmschutz gelegt.
Die rohe Erscheinung des Treppenraums in Sichtbeton mit einem Geländer aus durchgängig gefügten Stahlplatten, erhält durch die hohe bauliche Präzision eine hohe Wertigkeit und macht die Komplexität des Baukörpers erlebbar.
- 年
- 2021
- プロジェクトステータス
- 竣工済









