Haus der Demenz
Städtebau
Der prägnante, hohe Bau des Pflegezentrums wird mit dem Flachbau des neuen Hauses der Demenz zur freien volumetrischen Komposition ergänzt. Diese orientiert sich explizit nicht an der Strassengeometrie.
Mit maximalem Abstand wird der Park mit dem ‚Belvedere’ zwischen den beiden Bauten aufgespannt und freigespielt. Die Haupteingangsseite des Hauses der Demenz ist auf diesen Park und zum Pflegezentrum hin ausgerichtet. Mit der Funktion als Entrée zum Haus der Demenz wird der öffentliche Charakter des Parks gestärkt und erhält durch die beiden Volumen eine klare Fassung.
Architektur und Gemeinschaft
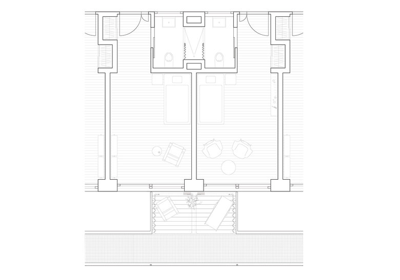
Zwei exzentrisch überlagerte Kreise definieren den innenliegenden, abgestuften Gartenhof, der in die beinahe quadratische Gebäudegrundform eingeschrieben ist. Das gemeinschaftliche Leben der Bewohner orientiert sich um diesen zentralen Ort: Die Wohnbereiche der vier Wohngruppen haben einen direkten Bezug zum Garten, der als verbindendes Element wirkt. Die rundum angeordneten Fenstertüren erlauben im Sommer einen fliessenden Übergang von Innen- und Aussenraum. Während im Erdgeschoss ein von blühenden Hecken und Staudenbepflanzung umgebenes Gartenzimmer den Hof zoniert, ist der obere Bereich des Hofes als gegen Süd orientiertes Terrassendeck konzipiert. Eine spindelförmige Treppe verbindet die beiden Ebenen.
Die Zimmer sind winkelförmig angeordnet und einerseits gegen Südwesten mit grossartiger Aussicht orientiert, andererseits gegen Südosten mit Ausblick in die Intimität verleihende geschützte Bestockung. Statt auf lange Korridorzonen sind sie wie in einer grossen Wohngemeinschaft direkt mit den grosszügig belichteten Wohnräumen verbunden. Da jeder Raum via den eigenen Balkon über einen direkten Zugang zum vorgelagerten Laubengang verfügt, gibt es für die gemeinsamen Wohnräume aus feuerpolizeilicher Sicht keine Beschränkungen bezüglich Nutzung, Materialisierung und Möblierbarkeit. Dies ermöglicht eine wohnliche Ausgestaltung der gesamten Wohnbereiche.
Konstruktion und Materialisierung
Bis auf die strassen- und parkseitige Winkelmauer und die unterirdischen Aussenmauern, welche in Ortbeton vorgesehen sind, ist das Gebäude im Sinne eines nachhaltigen Umgangs mit grauer Energie als tragende Holzkonstruktion konzipiert. Die Fassaden gegen Südost und Südwest und im Innenhof mit den dreifachverglasten Holzfenstern sind hinterlüftet und mit grossformatigen Holzplatten verschalt. Der sommerliche Sonnenschutz vor den Zimmern und vor der Innenhofverglasung wird mit frei verschiebbaren Vorhängen erreicht, welche dem Haus eine freundliche und sommerliche Atmosphäre verleihen.
Aussenraum
Die bestehende Struktur des Parks wird aufgenommen und weiterentwickelt: er erstreckt sich neu bis zur Haupteingangsfassade des Hauses der Demenz. Eine Baumreihe schliesst den Park zur Strasse hin ab und fasst den Strassenraum. An der Kante des Belvederes laden Sitzmöglichkeiten zum Verweilen ein. Der Hof erhält mit dem Gartenzimmer ein stimmungsvolles Element. Der Vegetationsring, bestehend aus einer wildwachsenden, blumigen, duftenden Hecke und bunten Blütenstauden, schafft geschützte Ecken und offene Bereiche.
Projektwettbewerb im selektiven Verfahren, 2. Rang
- 年
- 2012
- プロジェクトステータス
- デザイン案
- クライエント
- Stadt Zürich
- チーム
- Franziska Schneider, Jens Studer, Urs Primas, Francisco Amado, Zlatina Paneva, Lukasz Pawlicki
- Landschaftsarchitektur
- Schmid Landschaftsarchitekten GmbH
- Baumanagement
- BGS & Partner Architekten AG




