Urban Spaces 2 / Mumuleanu 14 Apartment Building
Name of work in English
Urban Spaces 2 / Mumuleanu 14 Apartment Building
Name of work in original language
Imobil de apartamente Mumuleanu 14
Placement
EUmies Awards Shortlisted
Prize year
2022
Year completed
2020 (Year began 2017)
Authors
Andrei Șerbescu (1977 Romania); Adrian Untaru (1977 Romania); Bogdan Brădățeanu (1980 Romania); Petra Bodea (1988 Romania); Mihail Filipenco (1992 Romania)
Collaborators
Structural engineering: Popp si Asociatii
Program
Collective housing
Labels
Courtyard, Shaped
Total area
1216 m2
Usable floor area
3450 m2
Client
Urban Spaces
Client Type
private
Map
LatLng: (44.4511764, 26.1084198)
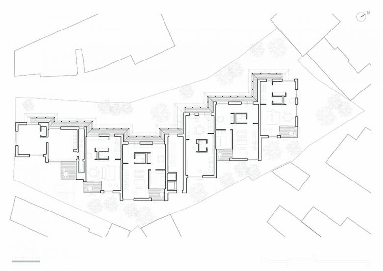
The project densifies a fragmented neighborhood in central Bucharest. It works with local dwelling typologies, in an attempt to preserve the flavour of small corners, courtyards, gardens, long narrow houses which all used to fill the old center of Bucharest, and which are quickly disappearing under a fast and mostly uncontrolled development process. The apartments building is located within a very heterogeneous urban fabric. It consists of 7 house-like volumes, successively placed along the site, creating a community of 20 different apartments. The building's imprecise outline opens less towards the street, and more towards the deep and diffuse core which is often hidden between Bucharest’s old streets. The elongated volume stretches from the street to the (deep) back of the site and stays connected to the street through an access courtyard that runs along the site's western boundary. On the plot’s eastern side, the long and irregular strip of land is split into a sequence of private gardens.
The entrances’ careful customization and the units' double orientation are borrowed from the characteristics of the wagon-type dwelling, a typical housing pattern in Bucharest's old central neighborhoods. Thus, on the ground floor duplex apartments are entered directly from the common garden, like a series of "maisonettes".
On the second floor, an external gallery runs along the whole building, as an elevated "alley" or garden, through which all apartments from the 2nd and 3rd+4th floor are accessed.
Bucharest's central areas face nowadays a fast and rather chaotic densification. While we believe that density can, and many times is form of sustainability, we also admit that the relationship between habitation within an old urban fabric and the increase of its density is often a fragile one, as such areas and places of our city might lose their atmosphere and character. Our project tries to mediate between different sizes and densities, in a central neighborhood with small streets, long, narrow plots, and a puzzle of old and new buildings, of all types and scales, which is also not far from the socialist intervention of a large boulevard and its "curtain" of tall apartment blocks. The project thus tries to work with a local typological criterion (the long “wagon-house”) and aims to respect and complete the neighborhood’s character, by attaching and overlapping within one long and fragmented building several dwellings with distinct, private entrances, porches, gardens, loggias or roof terraces. All units benefit from cross ventilation and open towards the more public West side (front) garden and towards the more intimate East side (back) garden. The structure is made of concrete frames which carefully follow the shape of the 7 volumes. Beams are used only on transversal direction, within the walls between the apartments, allowing for higher openings on the long facades. The slabs are cantilevered towards the Western side, creating the intermediate spaces of the verandahs and open gallery. The slabs are tied together with thin steel columns, working as cross-ties and allowing for a deep façade, with a “portico” appearance. At the same time, the project has searched to reclaim the plaster as a simple, yet beautiful façade material and technique. A very common and rich technique in Bucharest’s older architecture, it has recently almost disappeared, in a period when the whole city is being arbitrarily clad in polystyrene, with standard mechanized finishing. The plaster was applied and finished manually all around the building - all small errors were left visible, precisely because they enhance the beauty of the material. We believe that such "syncopes" complete the whole design’s expressiveness and may recover some of the "handcraft" techniques' lost qualities.
- Jaar
- 2020
- Projectstatus
- Built


