Casa Veronica

Venezia, Italië
© A+M2A

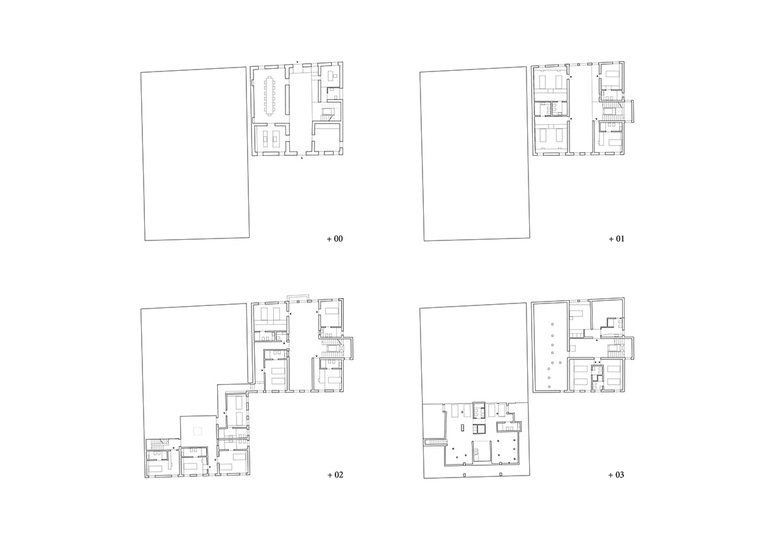
Il recupero del palazzo in canal grande a Venezia, uno dei primi grandi progetti dello studio, si presenta come serie illimitata di stratificazioni/superfetazioni che nel corso degli anni hanno reso illeggibile la conformazione della fabbrica. Il grande lavoro di analisi storica alla base del progetto ha permesso la totale comprensione dello spazio. L'intervento dunque si sviluppa in due fasi, la prima di pulitura, restituzione degli strumenti di lettura e conservazione secondo tecniche tradizionali degli elementi costituenti la fabbrica; la seconda di inserimento della funzione richiesta (di stampo alberghiero) e cucitura dell'abito. Come in altri progetti tutti i singoli elementi sono realizzati su disegno. Porte, infissi, scala, ascensore e arredi costituiscono l'unica via per la ricerca dell'etereo, che lo studio persegue. La naturale prosecuzione dell'antico, tono su tono senza alcuna necessità di prevalere su di esso.

© A+M2A
© A+M2A
© The Cool Couple
© The Cool Couple
© The Cool Couple
© The Cool Couple
© The Cool Couple
© The Cool Couple
Jaar
2015
Projectstatus
Built

Andere projecten van AMAA 

T – House
Arzignano , Italië