Arcostraße
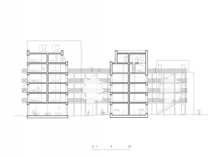
Das städtebauliche Ensemble an der Arcostraße nimmt Elemente aus dem Regelwerk des Berliner Blocks auf und überträgt diese in unsere heutige Zeit. Während sich die Vorderhäuser als Riegelbebauung fortsetzen, lösen sich im Grundstücksinnenbereich fünf Einzelbaukörper, die versetzt zueinanderstehen und die Hinterhäuser bilden. Im Vergleich zu den am Ende des 19. Jahrhunderts Stadtbildprägenden Berliner Bauten werden die Seitenflügel durch Stege ersetzt, die als Erschließung der Wohnungen dienen. Somit entsteht ein zusammenhängendes Ensemble mit einem hohen Maß an Durchlässigkeit.
Mix an der Spree
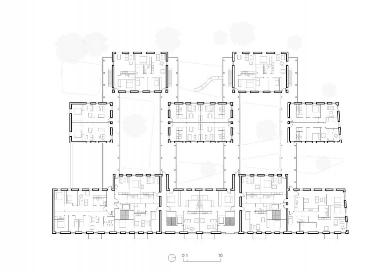
An der Spree gelegen sieht das Bauvorhaben eine Nutzungsdurchmischung vor. Die Porosität der Baukörper im Grundstücksinnenbereich sorgt für ein belebtes Miteinander im Erdgeschoss. Von der Spreeseite empfängt das Ensemble Gäste mit einem Gastronomiebetrieb. Die öffentliche Nutzung verteilt sich auf die einzelnen Höfe. Hier finden sich Kleinstgewerbeeinheiten und eine Kita. Die Obergeschosse sind für reines Wohnen vorgesehen. Das Wohnungsangebot reicht von Ein-Zimmer-Wohnungen bis zu Sechs-Zimmer-Wohnungen.
Erschließung als Kommunikationsraum
Die übergeordnete Erschließung aller Nutzungen geschieht von der Arcostraße. Im Grundstücksinnenbereich führen vier parallellaufende Stege und verbinden die Vorderhäuser mit den hinteren Häusern. Die beiden mittleren Eingänge sind durchgesteckt und dienen der Erschließung des Innenhofes.
In den Obergeschossen sind alle Hauseingänge an die Stege angebunden, welche die Einzelbaukörper flankieren und geschossweise erschließen. Außentreppen bilden im westlichen Grundstücksbereich den Endpunkt der Laubengangstege und dienen der Innenhoferschließung der Einzelbaukörper.
Das hierdurch entstehende spangenartige Erschließungskonzept stellt zugleich ein Rettungswegekonzept mit zwei diametral angeordneten Rettungswegen dar, wodurch die brandschutztechnischen Anforderungen an die Stege minimiert werden. Die Stege können somit offen und als nachbarschaftliche Begegnungsorte gestaltet werden, aufgewertet durch private Balkonbereiche.
- Jaar
- 2023
- Projectstatus
- Built
- Klant
- Gewobag Wohnungsbau-Aktiengesellschaft Berlin
- Gesamtprojektleitung
- Assmann beraten+planen GmbH
- Landschaftsarchitektur
- Holzwarth Landschaftsarchitektur
- Brandschutzplanung
- hhp berlin









