SCL Gatehouse
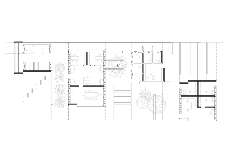
Light and shadows are the key ‘materials’ in the making of this project for a cement manufacturing plant. The building houses multiple disparate functions (contractors’ offices, check-in counters, security offices and labour offices) – the only thing they have in common is the location they claim at the entrance of the plant.
The project is then articulated as a cluster of four concrete boxes sitting on a shared rectilinear plinth. The boxes open out completely on two sides with collapsible panels made out of recycled materials. But it is in the spaces between these boxes that the density of architecture is experienced. Completing the cuboid outlined by the plinth, is a bar-code patterned filigree of ferro-cement pergolas which cast dramatic shadows. Cut-outs in the filigree become courtyards with large shade-giving trees. This entire non-functional envelope then produces a multivalent, playful social space for the various people who need to wait before or after accessing the plant.
- Projectstatus
- Under Construction










