Frizz 23
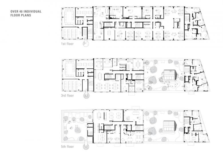
Frizz23 is a pioneer project created within the framework of five innovative participatory processes, three of them initiated and developed by the architects. Frizz23 and the processes behind it have charted a new approach to urban development, which can serve as a model for other sites and cities. Frizz23 is Germany’s first Baugruppe co-operative for cultural commercial space. The architects adapted the Baugruppe model to create workspaces for arts, education and the creative industries. This innovative proposal won Berlin’s first concept based public land sales procedure. The architects then assumed the roles of developers to build the community of users for the project. 32 small companies and non profits threatened by Berlin’s rapid gentrification joined to secure their workspaces. Inverting the process that developers normally follow, the architects first assembled the group around their programatic goals, and then designed the building in continuous dialogue with the users, the neighborhood, and the city. By expanding their role, the architects could create a building focussed on the needs of the community rather than maximizing profit. Following the principle First the dialogue, then the design, the architects pursued urban participation on 5 levels: 1. Neighborhood input: The mixed-use program was based on the KuKQ workshops, organized by local activists. 2. Land sales: Frizz23 was one of three projects selected in a public concept-based tender. 3. Community integration: the three winning projects formed PxB, a network that worked to integrate the projects in the neighborhood. 4. Co-operative development: the architects adapted the Baugruppe model, to the needs of a cultural mixed-use building. 5. Dialogue-based design: instead of a competition, the architects negotiated a new method to ensure design quality. Together with PxB they organized 4 workshops over 18 months in which the architects discussed their projects with planing authorities, local initiatives, and external experts. The building’s silhouette expresses the projects complex mixed-use program and ownership structure, a city within the city. In an inversion of typical developer projects, Frizz23 is actually three separate buildings bound together as one by black shimmering bands of charred larch wood. The facade is perforated by irregular openings in many different sizes. Each client could choose the size and location of their unit, and elements such as windows and balconies, therefore each floor plan is different. The smallest unit is 23 sqm, the largest 280 sqm, some units span two and even three floors. The ground floor is taller than other floors, and contains public uses (café, bike shop, project space, co-working, up-cycling workshop). The zigzag line is a historical reference to the market hall demolished on this site in 1953. Midnight blue anodized aluminium cladding references the planet Neptune, seen for the first time through a telescope in the observatory housed on this site until 1912.
- Jaar
- 2018
- Projectstatus
- Built
- Klant
- Forum Berufsbildung e.V. FrizzZwanzig GbR Miniloft Kreuzberg GbR
- Name of work in original language
- Frizz23 - Deutschlands erster Neubau einer kulturellen Gewerbebaugruppe
- Year completed
- 2018 (Year began 2016)
- Studio
- Deadline (Britta Jürgens + Matthew Griffin)
- Authors
- Britta Jürgens (1962 Germany); Matthew Griffin (1969 Not From Eu)
- Collaborators
- Structural engineering: EiSat GmbH Building physics: Flohrer GmbH Building technology: Plaschka GmbH Landscape architect: Planung.Freiraum Fire consulting: KLW GmbH Construction manager: Bollinger Fehlig GmbH
- Total area
- 2‘500 m2
- Usable floor area
- 9‘324 m2
- Cost
- 1‘636 €/m2
- Map LatLng
- (52.5033743, 13.3923023)












