Bürogebäude Perspektivstraße
Auf einem 9.500 m² großen Areal in der Perspektivstraße gleich in unmittelbarer Nähe zu Prater, Messe und WU Wien befand sich bisher ein unattraktiver Parkplatz. Dieser wurde durch ein neues Hotel vom Architekturbüro Zechner & Zechner, ein Hostel mit servisierten Appartments vom Architekturbüro nonconform und eben ein Bürogebäude von uns bebaut. „Prater Glacis“ nennt sich diese Entwicklung der ehemaligen No-Go-Area zu einem attraktiven Praterzugang.
Nachhaltige Arbeitswelt – Das Grätzl wandelte sich in den vergangenen Jahren zu einer hoch attraktiven Wohngegend. Verkehrsberuhigte Sackgassen, grüne Straßenzüge und ein sympathischer Markt bieten alles, was eine moderne, perfekt an die Stadt angeschlossene Wohngegend benötigt. Wichtig ist dabei, auf eine Mischnutzung mit Arbeitsangeboten im Viertel zu achten. Das Stuwerviertel mit dem Praterglacis ist damit ein Paradebeispiel für nachhaltige Stadtentwicklung. Für den Auftraggeber und uns sollte das Bürogebäude vor allem zwei Dinge erfüllen: Es soll langfristig nachhaltig sein und auf zeitgemäße Arbeitsbedingungen eingehen. Allen voran war uns die flexible Nutzung wichtig, denn Unternehmen entwickeln sich, MitarbeiterInnen gehen und kommen, die Arbeitswelt ist einem extrem schnellen Wandel unterworfen – genauso wie der Immobilienmarkt.
»Eine nachhaltige Architektur, die flexibel auf die sich rapide ändernde Arbeitswelt eingehen kann, war uns wichtig.«
Licht und schöne Blicke – Durch die Fensterbänder in jedem Stockwerk ist nicht nur eine flexible Raumaufteilung möglich, sondern auch eine angenehme, gleichmäßige und natürliche Belichtung. Im Zentrum ist nur das Stiegenhaus mit den Toiletten massiv ausgeführt. So haben künftige NutzerInnen von sehr kleinen Büroeinheiten bis zu loftartigen Arbeitswelten alle Möglichkeiten. Offenheit, viel natürliche Belichtung, schöne Außenräume und Terrassen waren uns ein Anliegen, um beim Arbeiten diese schöne Umgebung „an den Büroschreibtisch zu holen“.
»Und mit der Holzfassade wird der Wiener Prater weitergebaut.«
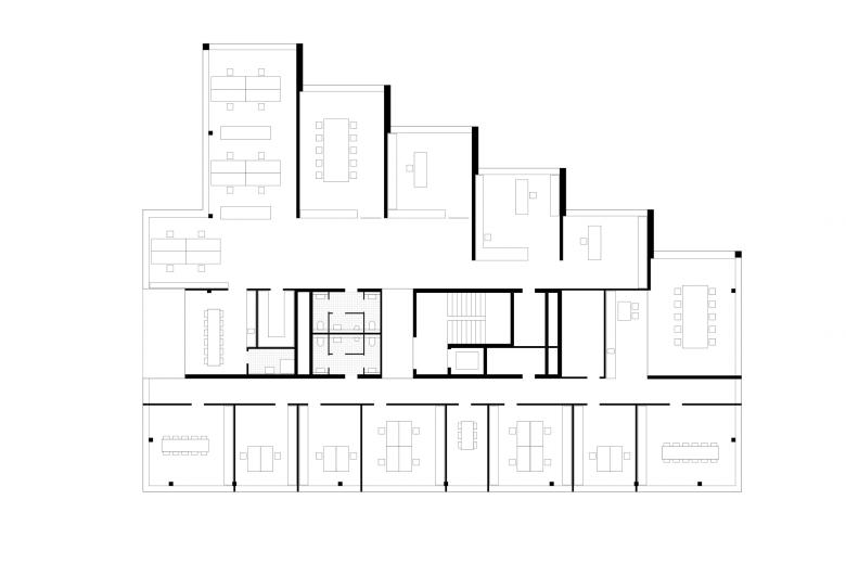
Flexible Büroaufteilung – Die Grundrissform ist eine abgestufte Figur. Die rechtwinklige Abstufung entspricht dem Baukörper mit seinem Versatz zwischen den Geschoßen. Die auskragenden Bürogeschoße bieten eine Überdachung der Autostellplätze. Der zentrale Erschließungskern ermöglicht eine Aufteilung von bis zu sechs Büroeinheiten auf 100m². Das Erdgeschoß ist zur Perspektivstraße großzügig verglast. Auf der einen Seite belebt Gastronomie die Straße, auf der anderen Seite ist die zentrale Lobby Treffpunkt im Bürohaus. Im 3. und 7. Obergeschoß befinden sich Terrassen: Hier können die MitarbeiterInnen Besprechungen abhalten, frische Luft schnappen oder einfach nur den Vögeln im Prater lauschen.
»Frische Luft schnappen oder einfach nur den Vögeln im Prater lauschen.«
- Jaar
- 2020
- Projectstatus
- Built
- Klant
- IG Immobilien Management GmbH
- Team
- Barbara Hohensinn (PL), Barbara Wagner (PL), Carla Kuhn, Suvi Repo, Ajdin Vukovic, Louai Abdul Fattah
- Statik & Bauphysik
- dsp Dorr - Schober & Partner ZT GmbH
- Gebäudetechnik
- Indutherm GesmbH, ETP GmbH
- Brandschutz
- Kunz GmbH
- Kostenmanagement
- Baumanagement Forstner GmbH, BM Erich Forstner
- Fotografie
- Andreas Buchberger









