Merck Modulares Gebäude
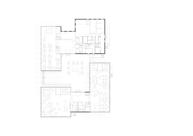
Mit der strategischen Initiative ONE Global Headquarters entwickelt Merck seinen Stammsitz in Darmstadt zu einer globalen Konzernzentrale weiter. Der Masterplan für das Unternehmensgelände sieht einen neuen, zentralen Platz an der Frankfurter Straße vor, um den sich das Werksgelände von Merck, einem führenden Unternehmen für innovative und hochwertige Hightech-Produkte in den Bereichen Healthcare, Life Science und Performance Materials, gruppiert. Gerahmt von zwei Bestandsbauten, entsteht auf dem Emanuel- Merck-Platz derzeit das zukünftige Innovationszentrum. Vis-a-vis an der Ostkante des Platzes wurde ein zweigeschossiger modularer Baukörper mit einer Grundfläche von 4.000 m² errichtet, das sogenannte Modulare Innovationszentrum. Bis zur geplanten Fertigstellung des zukünftigen Innovationszentrums Ende 2017 nimmt der modulare Neubau Arbeitsflächen für wechselnde interdisziplinäre Projektteams sowie ein Gästecasino und daran angeschlossene Tagungsräume auf.
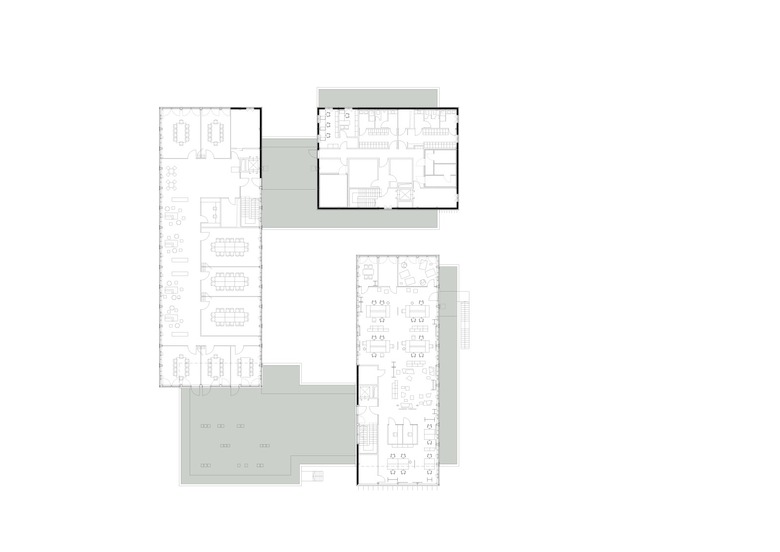
Ab 2018 soll das Gebäude dann als Besucherzentrum genutzt werden. Der Gebäudekörper besteht aus einzelnen, gegeneinander verschobenen und teils aufeinander gestapelten Modulen, die sich um einen Innenhof gruppieren. Ein schmaler, zurückspringender Sockel hebt die einzelnen Gebäudeteile vom Boden ab und lässt sie schweben. Das Fassadenraster betont die Fugen und lässt die modulare Bauweise aus einzelnen vorgefertigten Stahlelementen erkennen. Raumhohe Fenster geben den Blick auf den großzügigen Platz und den Innenhof frei. Am gesamten Gebäude werden mehrere, von Merck entwickelte Innovationen angewendet und getestet. Die rötlichen Lamellenelemente, die an den Südseiten des Baukörpers als Sonnenschutz dienen, enthalten farbstoffsensibilisierte Solarzellen, die Strom für einen Ein-Personen-Haushalt produzieren. In der exponierten Westfassade öffnet sich eine Fensterfront aus Liquid Crystal Windows von Merck. In der High-Tech-Beschichtung der Gläser wirken Flüssigkristallmoleküle wie mikroskopische Jalousien. Per Knopfdruck lassen sich die Fenster abdunkeln, sodass sie die Tagungsräume vor der Sonne schützen, ohne die Sicht auf den Platz zu beeinträchtigen. Die Verwendung von Technologien wie den farbstoffsensibilisierten, organischen Solarzellen und den intelligenten Flüssigkristallfenstern macht das Modulgebäude zu einem Vorzeigeprojekt für Innovationen von Morgen.
- Jaar
- 2015
- Projectstatus
- Built
- Klant
- Merck KGaA
- Kooperationspartner
- Bollinger + Grohmann, ZWP Ingenieure Topotek 1, Müller-BBM, Kucharzak Fassaden Engineering, Lumen³, IGW Ingenieurgruppe












