Westlake-Universität
Die 2018 gegründete Westlake-Universität ist ein neuer Typus von Forschungsuniversität – die erste ihrer Art im modernen China. Sie wird staatlich und privat finanziert und nimmt eine Vorreiterrolle bei der Reform des chinesischen Hochschulsystems ein. Ihr Ziel ist es, herausragende Talente zu fördern, wissenschaftliche Durchbrüche in der Grundlagenforschung und Innovation in Spitzentechnologien zu erzielen und durch Wissenschaft und Technologie zur Entwicklung der Gesellschaft beizutragen. Im Westen von Hangzhou sind auf dem Campus modernste Räume für die akademische Lehre, Labore, Büroräume, Sportanlagen, eine Kantine sowie Wohngebäude für die Studierenden und Lehrenden aus aller Welt entstanden.
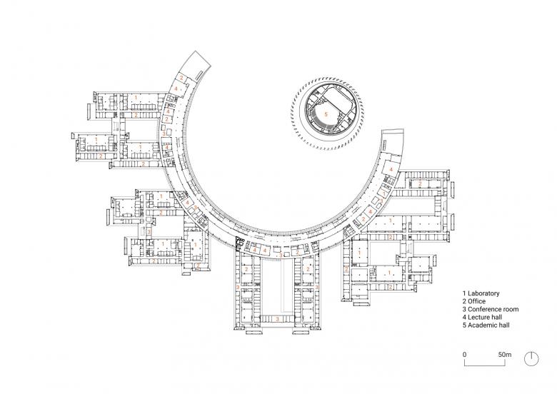
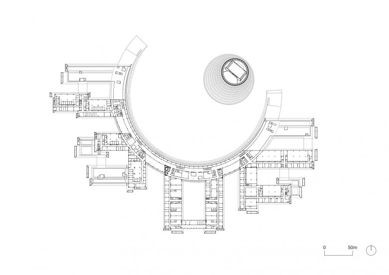
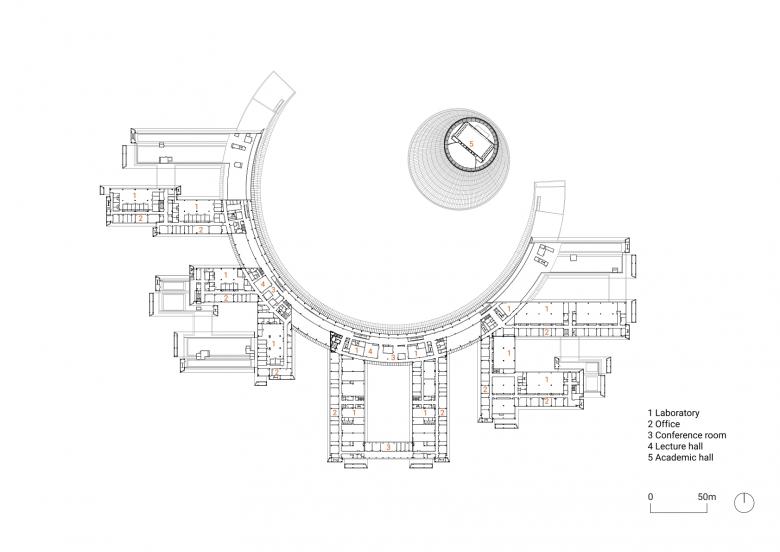
Der Campus folgt in seiner städtebaulichen Gestaltung der Idee von konzentrischen Ringen, die drei räumlich und organisatorisch unterschiedliche Bereiche schaffen: den Academic Core, den Water Loop und den Living Loop.
Die akademischen Institute – die School of Science, die School of Engineering, die School of Life Science und die School of Medicine – sind in jeweils eigenen Gebäuden untergebracht. Sie sind als modulare Riegel konzipiert, in einen markanten Rahmen aus Beton eingebettet und mit individuellen Farbakzenten und unterschiedlichen Fassadenstrukturen gestaltet. Brücken verbinden die Riegel und schaffen eine Reihe von Höfen. Die Verschränkung aller Institutsgebäude mit dem ringförmigen Academic Loop stellt eine Verbindung der akademischen Einrichtungen untereinander her und ermöglicht interdisziplinären Austausch.
An den Schnittstellen zwischen Loop und Institutsgebäuden sind gemeinschaftlich genutzte Bereiche platziert: Im Erdgeschoss stehen Labore Studierenden und Forschenden verschiedenster Disziplinen zur Verfügung, während sich in den oberen Etagen Hörsäle und Seminarräume sowie informelle Bereiche wie Cafés und Ausstellungsflächen befinden.
Im Academic Loop verdichten sich Bildung und soziales Miteinander zum Kern des Universitätsgeländes. Auf drei dynamisch verbundenen Ebenen bieten sich weite Blicke über den Campus und in die Institutsgebäude. Das Design lässt seine Kreisform bewusst unvollständig und vermittelt dadurch ein Gefühl von Offenheit und Raum für zukünftige Entwicklungen.
Im Zentrum des Rings befindet sich der zentrale Park der Universität – ein Garten um sich zurückzuziehen, zu reflektieren oder für soziale Begegnungen. Mitten im Garten befindet sich die Academic Hall, ein großes Auditorium, das als Ort für akademische Veranstaltungen dient und sich regelmäßig in einen Raum für Konzerte und kulturelle Veranstaltungen verwandelt.
Der Academic Core ist von einem ruhigen Wasserlauf umschlossen. Zwölf Brücken verbinden das akademische Zentrum mit dem grünen Living Loop, wo sich freistehende Wohngebäude für Studierende und Lehrende befinden. Mit Läden, Kantinen und Sportflächen ist der äußerste Ring lebendiger Treffpunkt des sozialen Lebens. Die Gestaltung des Campus ist von der Mitte aus gedacht – mit dem Academic Loop als Gravitationszentrum. Anstatt kurze Wege zu priorisieren, fördert und lenkt sie Bewegung der Studierenden und Mitarbeitenden durch das gesamte Areal. Jeder Ring besitzt einen ganz eigenen Charakter und bietet so vielfältige Erfahrungen, Inspiration und lebendigen Austausch. Ein Ort für zufällige Begegnungen, die neue Ideen und Denkweisen anregen.
- Jaar
- 2025
- Projectstatus
- Built
- Klant
- angzhou Municipal Command Center for the Promotion of Westlake University Project Construction; Westlake-Universität
- Team
- Hans Funk, Georg Pichler, Yuchen Wang, Martin Henn, Leander Adrian, Lida Alibegovic, Phyllis Buschmeyer, Anna Cwik, Daniel da Rocha, Martina Fabre, Sahra Gehrke, Denise Gellinger, Tongtong Gong, Wei Guo, Katrin Jacobs, Rachna Kothari, Paul Langley, Peter Lee, Yuanhao Li, Sha Liao, Tu Ba Hoang Ly, Ayk Martirosyan, Janine Parvis, Jekaterina Porohina, Katrin Schiffelholz, Clemens Schiffer, Mostafa Seleem, Andre Serpa, Yuekang Shu, Kathrin Stamm, Tiffany Taraska, Yaxi Yang, Zhe Zhang, Jingyi Zhou
- Local Design Institute (LDI)
- UAD – The Architectural Design & Research Institute of Zhejiang University Co. Ltd.
- Lichtplanung
- RDesign International
- Landschaftsarchitektur
- WES LandschaftsArchitektur
- Ausführende Firma
- Shanghai Construction Group




































