The Big Steps
Under the rapid urban development, the education need in Shenzhen gradually exceeds the current supply. The new fertility policy and education tendency also affect Chinese parents’ education vision and many different social fields as well. In March 2018, when facing the conflict between scarce land resources and surging educational needs, Shenzhen Futian District carried out the 8+1 Design Joint Exhibition programme, in which Interval Architects participated in the Hongling Secondary School campus competition.
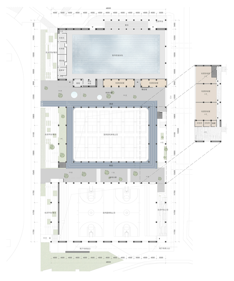
The Red Ridge Secondary School land size 89,971 square meters, the total construction area is about 110,000 square meters. There are 54 classes in high school (2,700 students). Through the renovation of the outdoor playground and the demolition of gymnasium buildings, the school expects to meet the need of the educational reform of non-graded instruction, to maximize the public activity space for both teachers and students, while improving the original teaching functions. The site is located in the campus center (between the west side of dormitory area and the east side of the teaching building), close to the stadium. The new sport building is expected to rearrange the circulation within the campus and connects more effectively different regions.
From Closed Space to Open Space
The core concept is that sports space will no longer be a closed space, rather, an open space and be more integrated with the surrounding environment.
A 400-meter playground runway is close to the west side of the site. We designed a 22-meter tall and 135-meter long large scale steps facing the playground. The broad steps become so large that they can function as outdoor venues such as basketball courts and volleyball courts. Below the platform are indoor badminton courts, swimming pools and basketball halls etc. The enlarged scale enables this big step no longer serve as an ordinary viewing stand, but a living platform, an open exercise area, and a multi-functional space that can carry various campus cultural activities and promote the exchange between students.
- Projectstatus
- Design

















