Neubau + Erweiterung Fabrikgebäude Stamm AG
Sechs Jahre nach der Realisierung des Neubaus ist das Unternehmen bereits an ihre Kapazitätsgrenze gestossen und braucht neue Produktions-, Büro und Lagerflächen. Eine Erweiterung der bestehenden Anlage sowie interne Umdisposition soll die nötigen Flächen schaffen. Des Weiteren sollte durch den Einbau einer effizienten Lüftungsanlage das Raumklima in der grossen Produktionshalle erheblich verbessert werden.
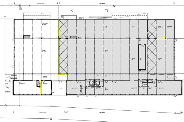
Die vier parallel nebeneinander liegenden, verschieden hohen Baukörpern mit zugeordneten Nutzungen wie Produktion (Spritzerei), Lager und Versand, Büro- und Personalräumen und interner Verbindungsstrasse, werden nach Westen um 6 Achsen á 5m erweitert.
Die Erweiterung fügt sich selbstverständlich und fasst nicht mehr sichtbar in das bestehende Gefüge ein, mit gleichen Dimensionen und Materialien:
Produktion mit bläulichem Glas und Aluminiumverkleidung, Lager mit geschlossener Aluminiumverkleidung, Bürogebäude dunkelblau verputzt und Verbindungsstrasse voll verglast. Das Nebeneinander wird mit einer Schichtung von geschlossenen und verglasten Flächen und von präzisen, horizontalen Abdeckbändern zu einem Ganzen verbunden. Zusammen ergibt sich ein harmonischer Farb- und Materialklang. Der durchgehende zitronengelbe Kunststoffboden schafft einen wohltuenden Kontrast zur kühlen, äusseren Erscheinung des Gebäudes und reflektiert das Licht als Warmton auf Wände und Decken.





