Chalet Bellavista

Photo © Robert Anacker

Um 1878 wurde das erste Châlet direkt an der Hauptzufahrt zu Flims Waldhaus gebaut und verfügte über sowohl günstige Hotelzimmer als auch Bedienstetenunterkünfte. Es stand mit seinem schlichten Baukörper in starkem Kontrast zu den übrigen prunkvollen Hotelgebäuden aus der Gründerzeit.

Das jahrzehntelang ungenutzte Gebäude musste 2006 abgerissen werden, der Neubau sollte die historische Gebäudeform modern interpretieren. Dies spiegelt sich insbesondere bei der Gestaltung der städtebaulich wichtigen Ost- und Westfassaden wider.

Das Gebäude wurde als Minergiehaus konzipiert. In das Dach wurde eine Photovoltaikanlage integriert, ausserdem sind kontrollierte Lüftung mit Wärmerückgewinnung und Wärmepumpe dezentral steuerbar.



Zur Strasse im Norden schützt die massive, nur von wenigen Fensterschlitzen unterbrochene Schale aus Dämmbeton, nach Süden gibt eine Glasfront nicht nur den Blick auf die Berge und den Flimser Grosswald frei sondern sorgt auch für Wärmegewinne im Winter.

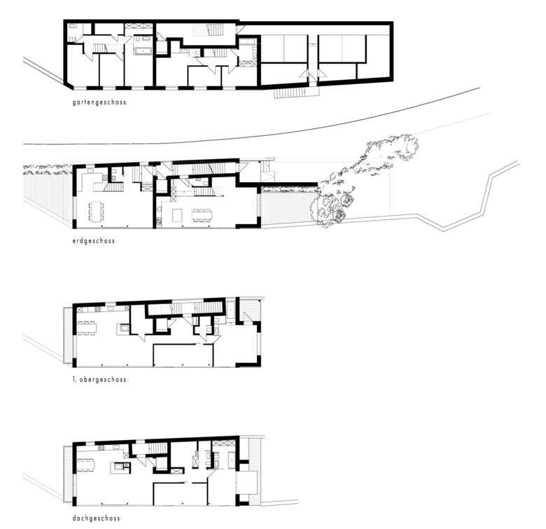
Die 4 offen gestalteten Wohnungen sind individuell über zwei Treppen, die entlang der Hauptstrasse angeordnet sind, erschlossen. In den zwei unteren Geschossen befinden sich zwei 4½-Zimmer Maisonette Wohnungen, die beiden oberen Etagen sind jeweils zu 3½-Zimmer Geschoss-Wohnungen ausgebaut und vermitteln Loft-Charakter.

Photo © Robert Anacker
Photo © Robert Anacker
Photo © Robert Anacker
Architecten
HP Fontana & Partner AG
Jaar
2009
Projectstatus
Built

Gerelateerde projecten 

  • Moos
    playze
  • Reiters Reserve Premium Suiten
    BEHF Architects
  • Erweiterung und Instandsetzung Hallenbad Altstetten
    MIYO Visualisierung
  • Neubau von fünf Einfamilienhäusern
    Bäumlin+John AG
  • The Forge in der 105 Sumner Street in London
    Kiefer Klimatechnik GmbH

Magazine 

Andere projecten van HP Fontana & Partner AG 

Feuerwehr Flims
Flims Dorf, Zwitserland
The Mountain Suites
Flims Waldhaus, Zwitserland
Vitg Grond
Flims Dorf, Zwitserland
Kurhotel im Park, Thermi Spa
Bad Schinznach, Zwitserland
Waldhaus Arena Flims, Curling- und Eventhalle
Flims, Zwitserland