Danilovsky Fort
Novodanilovskaya quay, 8, Moscow, Rusland
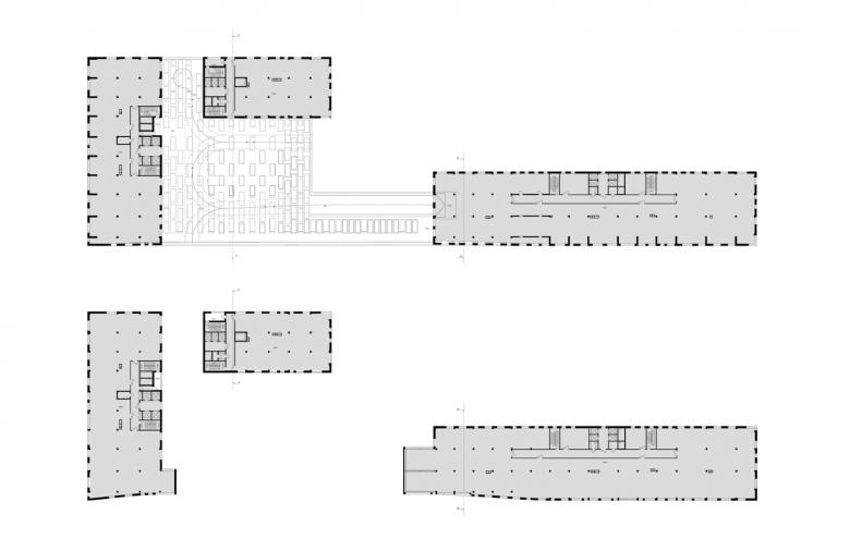
The business center is composed of three different storied vertically oriented volumes based on single story flat ground floor. Clear and rational layout idea is softened by complicated plastic forms of facades. Active rhythm of differently sized windows that accrues and fades relieves from standard boredom and monotony so inherent to architecture of all business centers.
Drawing of façade windows stresses the main peculiarity of the building - indented walls that give graceful curve to the main façade which looks to the riverside.
The two glazed consoles protruding from opposite brick towers aspire on a meeting to each other and thus unite the whole structure. Decorative brick of irregularly varying shades and tones is used for all facades. Brick mass of the whole complex soars above the ground floor structure because of its glass filled outer walls.
The whole composition enabled to make the inner yard on the roof of ground floor. In the center of this yard an artificial hill with skylights rises above lawns and flower pots. The daylight streams through directly into the main room of ground floor which can be used as central canteen.
- Architecten
- Sergey Skuratov Architects
- Jaar
- 2008
- Projectstatus
- Built
- Klant
- ‘Business Stroy’ - ‘MR-group’ - ‘Tehnologiya’ ltd
- Function
- Administrative and office center
- Project organisation
- ‘Sergey Skuratov Architects’ ltd
- Authors
- S. Skuratov (lead author), A. Romanov, E. Kuznetsova, with: N. Demidov, P. karpovsky, O. Lebedeva, A. Makeeva, A. Platonov, I. S
- Project stages
- architectural concept, architectural project, design drawings, architectural supervision
- Project
- 2005
- Construction
- 2006–2008
- Total object area
- 40 000 m²
- Overground area
- 32 229m²
- Underground area
- 7 078 m²
- Public area
- 5 570 m²
- Construction volume
- 191 564 m³
- Site area
- 7 987 m²
- Construction area
- 6 973 m²
- Area of landscaping
- 2 635 m²
- Number of floors
- 1-6-10-12
- Absolute hight
- 50,6 m
- Publications (in English)
- Tatlin Mono №2 Sergey Skuratov Architects // The Plan #075, 03.07.2014

















