Erweiterung Schulanlage

Photo © Pierre Montavon

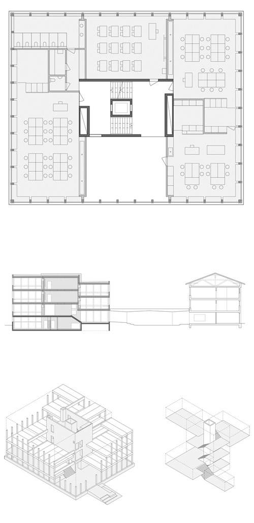
Die ausgedehnte, sternförmige Schulanlage, die bereits mehrmals erweitert wurde, erhält einen präzisen und kompakten Baukörper hinzugefügt. Die von den bestehenden Bauten losgelöste Erweiterung ermöglicht es, die Qualitäten der Aussenräume zu wahren und weiterzuführen. Die Schnittlösung mit Splittlevel ergibt eine sinnvolle Verteilung des heterogenen Programmes: Mensa mit Küche, Werkräume, Bibliothek, Schüleraufenthalt, Lehrerzimmer, Zeichensäle und Klassenzimmer. Die Gebäudestruktur aus Holz ist modular konzipiert: sie lässt sich entlang des aussteifenden Erschliessungskernes aus Beton vertikal erweitern und sich den ändernden Bedürfnissen der Benutzer anpassen. Die Fassade aus farbigem Holz zieht sich in Form von durchgehenden Bändern um das Gebäude, deren Höhen sich mit den verschiedenen Funktionen und versetzten Geschossdecken verändern. Das Tragsystem soll weitgehend vorfabriziert werden, um die Bauimmissionen auf ein Minimum zu reduzieren. Der Neubau erfüllt die Anforderungen des Minergie-Standards.

Photo © Pierre Montavon
Photo © Pierre Montavon
Photo © Pierre Montavon
Photo © Pierre Montavon
Photo © Pierre Montavon
Photo © Pierre Montavon
Architecten
GXM Architekten
Jaar
2012
Projectstatus
Built

Gerelateerde projecten 

  • Moos
    playze
  • Reiters Reserve Premium Suiten
    BEHF Architects
  • Erweiterung und Instandsetzung Hallenbad Altstetten
    MIYO Visualisierung
  • Neubau von fünf Einfamilienhäusern
    Bäumlin+John AG
  • The Forge in der 105 Sumner Street in London
    Kiefer Klimatechnik GmbH

Magazine 

Andere projecten van GXM Architekten 

Le Ticle Zentrumsüberbauung
Delémont, Zwitserland
Multifunktionale Überbauung Gare des Eaux-Vives
Genf, Zwitserland
Familien- und Generationenhaus
Zürich, Zwitserland
Dauerausstellung MICR
Genf, Zwitserland
Wohnwerkstatt
Dübendorf, Zwitserland